www.citify.eu
Statement date: 2026-01-20 07:15:41
Updated: 2024-01-24

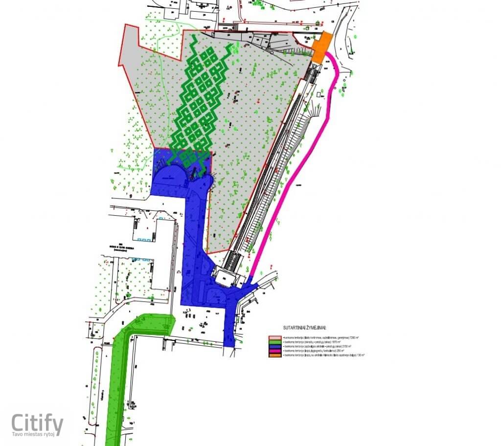
Aleksoto apžvalgos aikštelė

V. Čepinsko g., Aleksotas, Kaunas

Square

950 000

Financing

ES, Kauno miesto savivaldybė

Territory

Area size

- ha

No viewings

Related companies

Advertisement
U128
U128
Butai Žvėryne
Butai šiaurinėje Žvėryno dalyje šalia Panoramos. Aukštos lubos ir erdvūs balkonai. Statybų pabaiga jau artėja, registruokis apžiūrai.

Location   Embed

Finished Reconstruction
Begin

2018 Q2

End

2019 Q4

Stages
Project ID