www.citify.eu
Statement date: 2025-12-11 16:41:08
Updated: 2025-08-14

Bitėnų g. 2C

Bitėnų g. 2C, Pilaitė, Vilnius

House of worship

-

Financing

-

Territory

Area size

0.5975 ha

Area density

36.5 %

Area intensity

0.35

Building footprint

276,00 m2

Amount of greenery

23.5 %

Technical parameters

Volume

Gross size

462,51 m2

Overground size

Underground size

Useful area

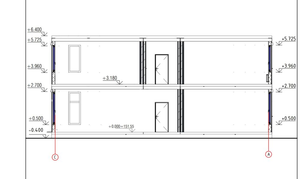
Floors

2

Height

6.8 m

Energy class

-

Underground floors

0

Transport

-

0

0

Latest viewing

Project proposals
Status

2024-05-31 15:00
Vydūno g. 20, Vilnius
Documents
These are project proposals submitted for public viewing

View the document

Info source

Open


Related companies

Advertisement
MO VILLAS
MO VILLAS
Įsigykite vieni pirmųjų
Išskirtinis projektas Naujosiose Justiniškėse su unikalia rekreacine zona šalia miško ir Buivydiškių tvenkinių. Kainos nuo 97 000 €!

Location   Embed

Planned New construction
Begin

-

End

-

Stages
Project ID