www.citify.eu
Statement date: 2025-11-15 21:02:39
Updated: 2024-11-03

Home 4City

Karaliaučiaus g. 7C, Pilaitė, Vilnius

Multi apartment

-

Developer

4City

Certificate

-

Apartment information

Sales
Available: 1 (2%) Reserved: 0 (0%)Sold: 42 (98%)
Quantity

43

Apartment sizes

34 - 60 m2

Price per square

3 239 - 3 239 €

Sales

+370 658 60 073

martynas@4city.lt

+370 636 39 727

gediminas@4city.lt

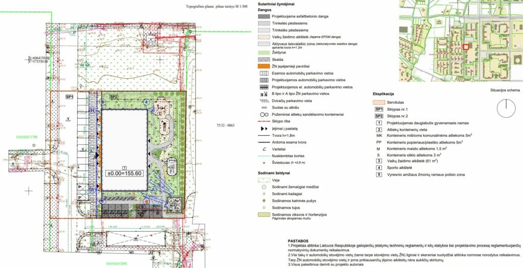
Territory

Area size

0.25 ha

Area density

32.94 %

Area intensity

1.2899

Building footprint

0,00 m2

Amount of greenery

40 %

Technical parameters

Volume

Gross size

2 115,47 m2

Overground size

Underground size

Useful area

Commercial premises

193.1 m2

Floors

5

Height

16.75 m

Energy class

A++

Underground floors

0

Transport

23

5

23

Latest viewing

Project proposals
Status

2022-12-01 16:00
Documents
These are project proposals submitted for public viewing

View the document

Info source

Open


Related companies

Advertisement
U128 Butai Žvėryne
U128 Butai Žvėryne
Butai šiaurinėje Žvėryno dalyje šalia Panoramos. Aukštos lubos ir erdvūs balkonai. Statybų pabaiga jau artėja, registruokis apžiūrai.

Location   Embed

Finished New construction
Begin

2023 Q1

End

2023 Q4

Stages
Project ID