www.citify.eu
Statement date: 2025-11-17 03:19:04
Updated: 2022-08-21

IKI Pilaitės pr. parduotuvė ir administracinis

Pilaitės pr. 42, Pilaitė, Vilnius

Food store • Office center

10 000 000

Developer

IKI Lietuva

Certificate

-

Territory

Area size

2.7835 ha

Area density

12 %

Area intensity

Building footprint

0,00 m2

Amount of greenery

63 %

Technical parameters

Volume

Gross size

5 850,00 m2

Overground size

Underground size

Useful area

Area for rent

Floors

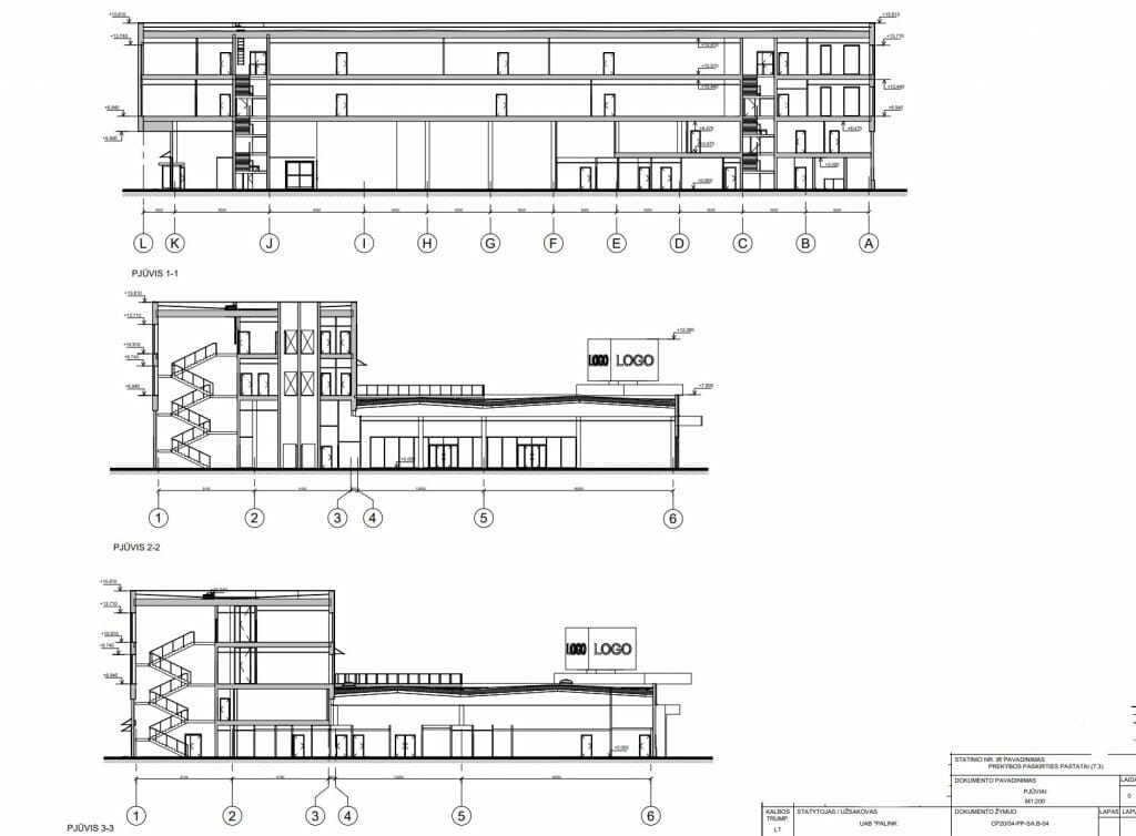
3

Height

16.5 m

Floor size

Office class

-

Energy class

A++

Underground floors

0

Transport

190

0

0

Latest viewing

Project proposals
Status

2020-10-08 17:00
Documents
These are project proposals submitted for public viewing

View the document

Info source

Open


Related companies

Advertisement
U128 Butai Žvėryne
U128 Butai Žvėryne
Butai šiaurinėje Žvėryno dalyje šalia Panoramos. Aukštos lubos ir erdvūs balkonai. Statybų pabaiga jau artėja, registruokis apžiūrai.

Location   Embed

Finished New construction
Begin

2021 Q3

End

2022 Q3

Stages
Project ID