www.citify.eu
Statement date: 2026-02-10 11:42:32
Updated: 2023-08-11

J. Basanavičiaus g. 7

J. Basanavičiaus g. 7, Senamiestis, Vilnius

Office center

-

Developer

Vilbeksa

Certificate

-

Territory

Area size

0.1906 ha

Area density

64 %

Area intensity

2

Building footprint

0,00 m2

Amount of greenery

- %

Technical parameters

Volume

Gross size

2 492,00 m2

Overground size

Underground size

Useful area

Area for rent

Floors

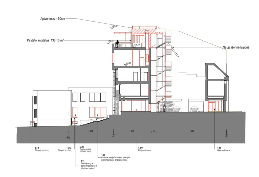
4

Height

20 m

Floor size

Office class

-

Energy class

C

Underground floors

0

Transport

16

0

6

Latest viewing

Project proposals
Status

Documents
These are project proposals submitted for public viewing

View the document

Info source

Open


Related companies

Advertisement
U128
U128
Butai Žvėryne
Butai šiaurinėje Žvėryno dalyje šalia Panoramos. Aukštos lubos ir erdvūs balkonai. Statybų pabaiga jau artėja, registruokis apžiūrai.

Location   Embed

Planned Reconstruction
Begin

-

End

-

Stages
Project ID