www.citify.eu
Statement date: 2026-01-18 07:08:18
Updated: 2024-02-13

J. Grušo g. 22A

J. Grušo g.22A, Šilainiai, Kaunas

Multi apartment

-

Developer

Private person

Certificate

-

Apartment information

Sales
We don't have this data
Quantity

5

Apartment sizes

54.59 - 67.83 m2

Price per square

- €

Territory

Area size

0.0599 ha

Area density

32.05 %

Area intensity

58.21

Building footprint

0,00 m2

Amount of greenery

- %

Technical parameters

Volume

Gross size

348,69 m2

Overground size

Underground size

Useful area

Commercial premises

0 m2

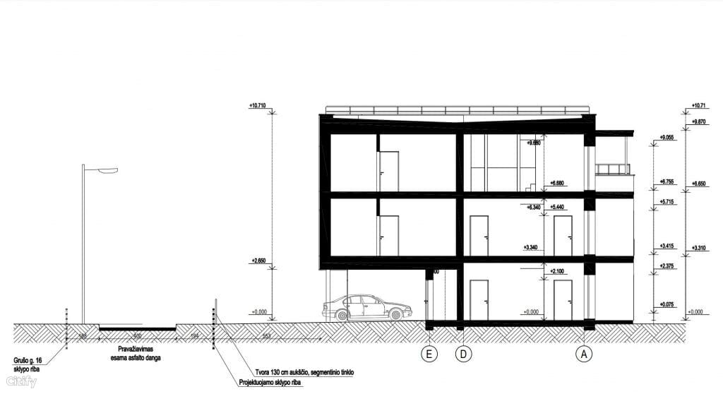
Floors

3

Height

10.71 m

Energy class

A++

Underground floors

0

Transport

5

1

0

Latest viewing

Project proposals
Status

2021-05-04 15:00
Transliacija internetu: us02web.zoom.us/j/94216505767 Slaptažodis: 8xQ97e
Documents
These are project proposals submitted for public viewing

View the document

Info source

Open


Related companies

Advertisement
BALTUPIS
BALTUPIS
NAUJI BUTAI NUO 3090 €/m²
Namai, apie kuriuos ilgai svajojote: 2 etape pradinė įmoka tik 2 000 €. Nenorite laukti? 1 etapas jau pastatytas – raktus gaukite iš karto.

Location   Embed

Finished New construction
Begin

-

End

-

Stages
Project ID