www.citify.eu
Statement date: 2026-03-06 05:03:06
Updated: 2026-02-16

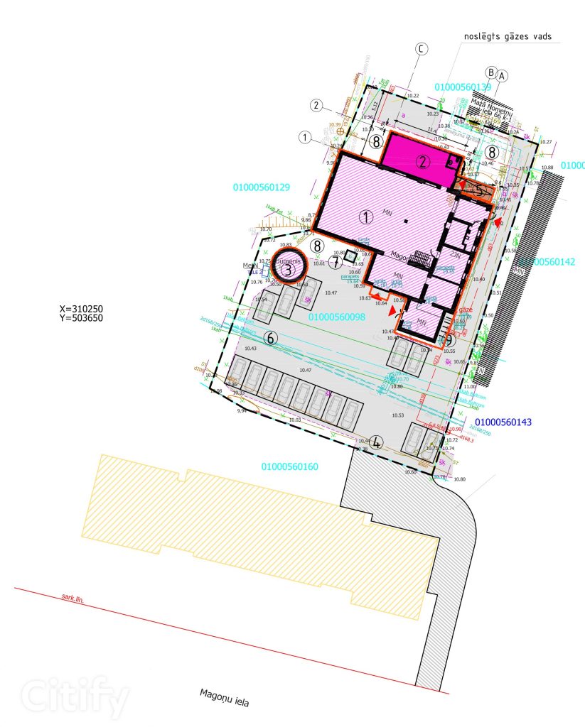
Katla mājas pārbūve - Magoņu ielā 9A

Magoņu ielā 9A, Āgenskalns, Rīga

Distribution network

-

Developer

SunStudio

Financing

-

Territory

Area size

0.1553 ha

Area density

32 %

Area intensity

0.37

Amount of greenery

- %

Technical parameters

Volume

Gross size

548,40 m2

Overground size

Underground size

Useful area

Floors

2

Height

9.16 m

Underground floors

0

Length

0 km

Transport

15

0

10

No viewings

Related companies

Advertisement
Get full access with Citify Pro membership
From 30 Eur / month
Find business opportunities with full data access and functionality.

Location   Embed

Undergoing New construction
Begin

2020 Q4

End

-

Stages
Project ID