www.citify.eu
Statement date: 2026-03-08 10:33:07
Updated: 2026-02-23

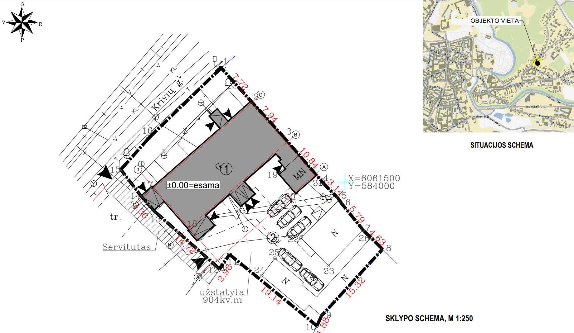
Krivių g. 13

Krivių g. 13, Senamiestis, Vilnius

Multi apartment

-

Developer

Užupis properties

Certificate

-

Apartment information

Sales
We don't have this data
Quantity

8

Apartment sizes

33 - 60 m2

Price per square

- €

Territory

Area size

- ha

Area density

- %

Area intensity

-

Building footprint

0,00 m2

Amount of greenery

- %

Technical parameters

Volume

Gross size

343,16 m2

Overground size

Underground size

Useful area

Commercial premises

0 m2

Floors

2

Height

7.45 m

Energy class

-

Underground floors

0

Transport

5

0

0

Latest viewing

Project proposals
2019-04-04 17:00
Vilniaus senamiesčio atnaujinimo agentūroje, adresu Stiklių g. 4, Vilnius
Documents
These are project proposals submitted for public viewing

View the document

Info source

Open


Related companies

Advertisement
U128
U128
Butai Žvėryne
Butai šiaurinėje Žvėryno dalyje šalia Panoramos. Aukštos lubos ir erdvūs balkonai. Statybų pabaiga jau artėja, registruokis apžiūrai.

Location   Embed

Undergoing Major repair
Begin

2026 Q1

End

2027 Q1

Stages
Project ID