www.citify.eu
Statement date: 2026-01-20 08:41:53
Updated: 2025-08-14

Liepkalnio g. 200B

Liepkalnio g. 200B, Rasos, Vilnius

Warehouse / Distribution center

-

Developer

Sofija

Certificate

-

Territory

Area size

1 ha

Area density

13 %

Area intensity

0.17

Building footprint

0,00 m2

Amount of greenery

- %

Technical parameters

Volume

Gross size

1 648,64 m2

Overground size

Underground size

Useful area

Area for rent

Floors

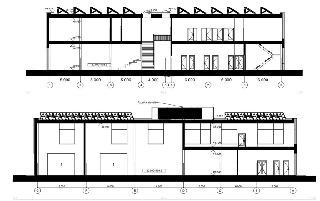
2

Height

9.6 m

Floor size

Office class

-

Energy class

A++

Underground floors

0

Transport

63

8

12

Latest viewing

Project proposals
Status

2023-07-17 17:00
Documents
These are project proposals submitted for public viewing

View the document

Info source

Open


Related companies

Advertisement
U128
U128
Butai Žvėryne
Butai šiaurinėje Žvėryno dalyje šalia Panoramos. Aukštos lubos ir erdvūs balkonai. Statybų pabaiga jau artėja, registruokis apžiūrai.

Location   Embed

Planned New construction
Begin

-

End

-

Stages
Project ID