www.citify.eu
Statement date: 2026-03-16 04:35:37
Updated: 2024-01-24

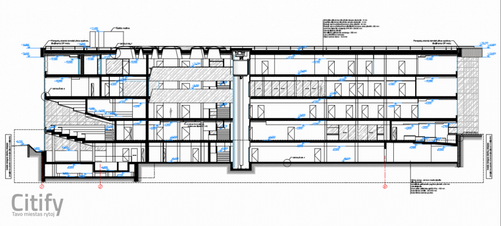
LSMU Slaugos fakultetas

Eivenių g. 2, Žaliakalnis, Kaunas

Higher education

10 000 000

Financing

-

Territory

Area size

- ha

Area density

- %

Area intensity

-

Building footprint

0,00 m2

Amount of greenery

- %

Technical parameters

Volume

Gross size

5 892,00 m2

Overground size

Underground size

Useful area

Floors

4

Height

0 m

Energy class

-

Underground floors

0

Transport

-

0

0

No viewings

Related companies

Advertisement
Remarco
Remarco
Prekybos ir biurų erdvės
Markučiuose statomame „Remarco“ verslo centre - prekybos ir biurų patalpos nuomai nuo 50 kv.m.

Location   Embed

Finished New construction
Begin

2018 Q2

End

2022 Q1

Stages
Project ID