www.citify.eu
Statement date: 2026-03-08 09:25:24
Updated: 2025-08-14

Marijampolės g. 4

Marijampolės g. 4, Naujamiestis, Vilnius

Hotel

-

Developer

Private person

Certificate

-

Territory

Area size

0.2275 ha

Area density

45.2 %

Area intensity

2.05

Building footprint

1 029,00 m2

Amount of greenery

22.9 %

Technical parameters

Volume

Gross size

5 861,00 m2

Overground size

Underground size

Useful area

Area for rent

Floors

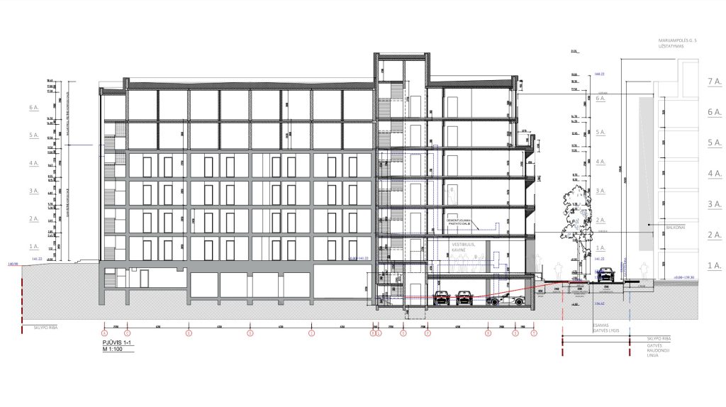
6

Height

22.31 m

Floor size

Office class

-

Energy class

-

Underground floors

1

Transport

41

8

52

Latest viewing

Previous viewings

Related companies

Advertisement
U128
U128
Butai Žvėryne
Butai šiaurinėje Žvėryno dalyje šalia Panoramos. Aukštos lubos ir erdvūs balkonai. Statybų pabaiga jau artėja, registruokis apžiūrai.

Location   Embed

Planned Reconstruction
Begin

-

End

-

Stages
Project ID