www.citify.eu
Statement date: 2026-03-16 04:21:28
Updated: 2025-08-14

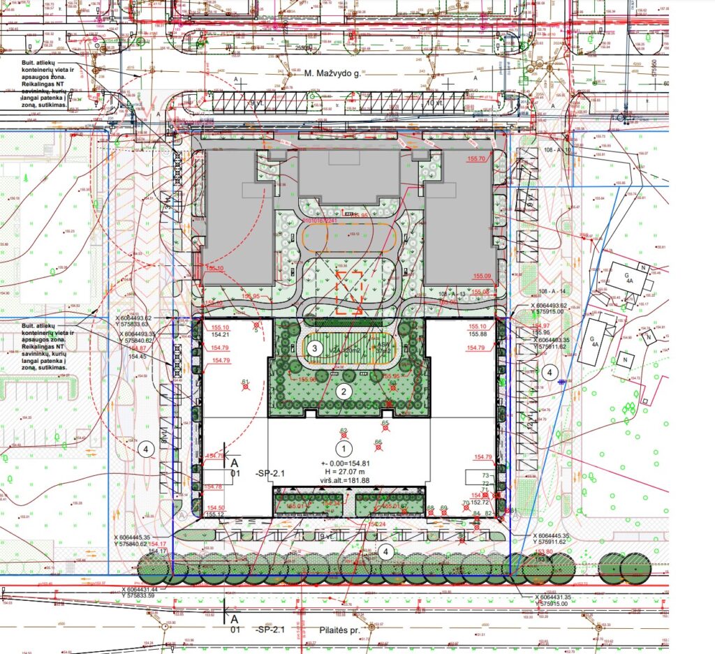
Martyno namai 5 etapas

Pajautos g. 4A, Pilaitė, Vilnius

Multi apartment

-

Developer

Minera

Eriadas

Certificate

-

Apartment information

Sales
We don't have this data
Quantity

120

Apartment sizes

27 - 58 m2

Price per square

- €

Territory

Area size

0.5063 ha

Area density

44.1 %

Area intensity

1.72

Building footprint

2 223,00 m2

Amount of greenery

30 %

Technical parameters

Volume

Gross size

11 866,98 m2

Overground size

Underground size

Useful area

Commercial premises

1758.5 m2

Floors

7

Height

27.07 m

Energy class

A++

Underground floors

1

Transport

113

0

32

Latest viewing

Project proposals
Status

2024-04-24 16:00
Documents
These are project proposals submitted for public viewing

View the document View the document View the document

Info source

Open


Previous viewings

Project proposals
2023-07-18 16:00
Documents
These are project proposals submitted for public viewing

View the document

Info source

Open


Related companies

Advertisement
Remarco
Remarco
Prekybos ir biurų erdvės
Markučiuose statomame „Remarco“ verslo centre - prekybos ir biurų patalpos nuomai nuo 50 kv.m.

Location   Embed

Planned New construction
Begin

-

End

-

Stages
Project ID