www.citify.eu
Statement date: 2026-01-17 00:08:10
Updated: 2024-03-27

Mūnai 1 etapas (verslo centras)

Kareivių g. 5, Žirmūnai, Vilnius

Office center

-

Developer

Citus

Certificate

-

Territory

Area size

0.85381 ha

Area density

23.97 %

Area intensity

1.87

Building footprint

0,00 m2

Amount of greenery

- %

Technical parameters

Volume

Gross size

10 943,50 m2

Overground size

Underground size

Useful area

Area for rent

Floors

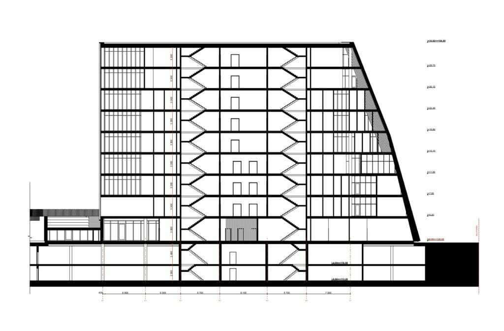
9

Height

33.92 m

Floor size

Office class

-

Energy class

A++

Underground floors

2

Transport

115

18

0

Latest viewing

Project proposals
Status

Documents
These are project proposals submitted for public viewing

View the document

Info source

Open


Related companies

Advertisement
BALTUPIS
BALTUPIS
NAUJI BUTAI NUO 3090 €/m²
Namai, apie kuriuos ilgai svajojote: 2 etape pradinė įmoka tik 2 000 €. Nenorite laukti? 1 etapas jau pastatytas – raktus gaukite iš karto.

Location   Embed

Planned New construction
Begin

2024 Q1

End

2024

Stages
Project ID