www.citify.eu
Statement date: 2026-02-13 11:56:39
Updated: 2026-01-30

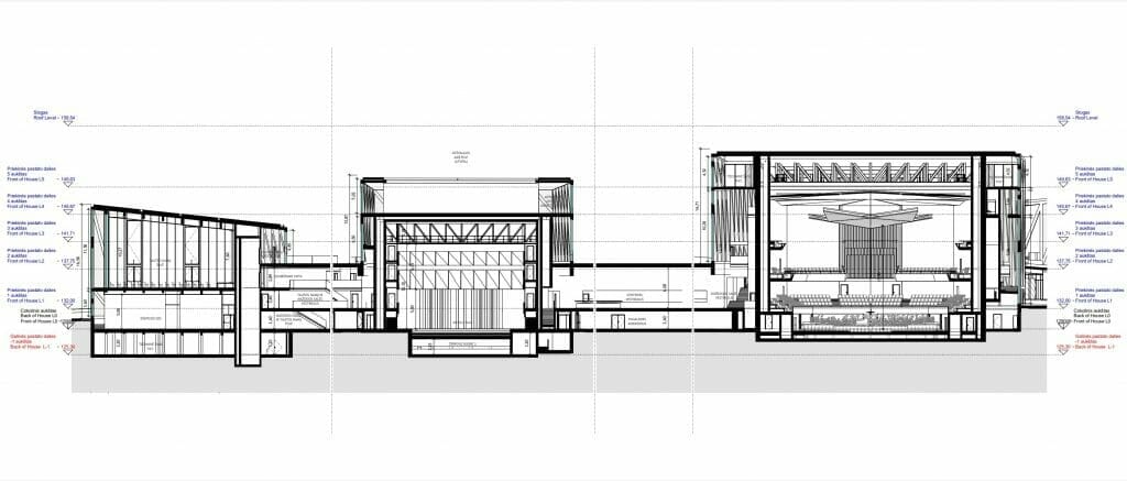
Nacionalinė koncertų salė "Tautos namai"

V. Mykolaičio-Putino g. 5, Naujamiestis, Vilnius

Concert hall

121 000 000

Financing

Lietuvos Respublika

Territory

Area size

2.0166 ha

Area density

50 %

Area intensity

0.49

Building footprint

0,00 m2

Amount of greenery

25 %

Technical parameters

Volume

Gross size

21 544,00 m2

Overground size

Underground size

Useful area

Floors

6

Height

24.8 m

Energy class

A++

Underground floors

2

Transport

51

0

100

Latest viewing

Project proposals
Status

2021-09-02 17:00
Transliacija internetu: nacionalinekoncertusale.zoomtv.lt
Documents
These are project proposals submitted for public viewing

View the document View the document View the document View the document

Info source

Open


Related companies

Media articles

Vilniuje pradėtos Nacionalinės koncertų salės statybos: įkasta kapsulė ateities kartoms
2024-11-18  ·  vilnius.lt
Vyksta paruošiamieji darbai Nacionalinės koncertų salės statyboms
2024-08-27  ·  vilnius.lt
Antras dublis: paskelbtas Nacionalinės koncertų salės rangos konkursas
2023-12-28  ·  vz.lt
Bus skelbiamas naujas Nacionalinės koncertų salės rangos pirkimas
2023-12-21  ·  vz.lt
Baigė testuoti Nacionalinės koncertų salės akustiką
2023-12-05  ·  vz.lt
Paskelbtas Nacionalinės koncertų salės rangos konkursas
2023-10-09  ·  vilnius.lt
Nacionalinę koncertų salę planuojama pastatyti 2030 metais, kaina sieks 121 mln. eurų
2023-09-11  ·  madeinvilnius.lt
Vilniaus Nacionalinės koncertų salės projektas jau turi statybos leidimą
2022-12-13  ·  vilnius.lt
Nacionalinės koncertų salės statybos pabrango iki 104 mln. eurų
2022-10-20  ·  madeinvilnius.lt
Nacionalinės koncertų salės projektas baigtas, ruošiamasi statyboms
2022-10-19  ·  vilnius.lt
Ant Tauro kalno stiprėja garsas: Nacionalinės koncertų salės projektas ruošiamas ekspertizei, bus testuojamas akustinis modelis
2022-06-21  ·  vilnius.lt
Aiškėja Nacionalinės koncertų salės „Tautos namai“ koncepcija
2021-05-13  ·  vz.lt
Vilniaus koncertų salei pabrangus iki 75 mln. eurų, numatytas finansavimas atidėtas
2021-04-20  ·  15min.lt
Oficialu: pasirašyta sutartis dėl Nacionalinės koncertų salės projektavimo
2020-11-26  ·  vilnius.lt
Nacionalinės koncertų salės projektavimo sutartį tikimasi pasirašyti birželį
2020-06-22  ·  15min.lt
„Tautos namų“ ant Tauro kalno kūrėjai: kodėl mums būtina tapti unikaliais
2020-06-16  ·  madeinvilnius.lt
Paskutinė diena apžiūrėti Profsąjungų rūmus – pastatą griaus
2019-10-08  ·  15min.lt
Paaiškėjo, kaip atrodys nacionalinė koncertų salė ant Tauro kalno
2019-09-19  ·  madeinvilnius.lt
Koncertų salės ant Tauro kalno konkurse laukia architektūros žvaigždžių
2018-11-28  ·  vz.lt
Savivaldybė: profsąjungų rūmų išpirkimo kainą nustatys teismas
2018-08-12  ·  vz.lt
Vilniaus savivaldybė Profsąjungų rūmus nori perimti už 6 mln. Eur
2018-06-11  ·  vz.lt
Pradeda koncertų salės ant Tauro kalno projektą: užsako studiją
2018-03-21  ·  vz.lt
Vilnius ant Tauro kalno statys Nacionalinę koncertų salę
2018-01-10  ·  vz.lt

Public tender

New

Advertisement
U128
U128
Butai Žvėryne
Butai šiaurinėje Žvėryno dalyje šalia Panoramos. Aukštos lubos ir erdvūs balkonai. Statybų pabaiga jau artėja, registruokis apžiūrai.

Location   Embed

Undergoing New construction
Begin

2024 Q4

End

2028 Q4

Stages
Project ID