www.citify.eu
Statement date: 2026-03-10 18:31:56
Updated: 2023-05-02

Naugarduko g. 74

Naugarduko g. 74, Naujamiestis, Vilnius

Other commercial

-

Developer

Megamesta

Certificate

-

Territory

Area size

0.1677 ha

Area density

55.4 %

Area intensity

1.01

Building footprint

930,00 m2

Amount of greenery

10 %

Technical parameters

Volume

Gross size

1 913,90 m2

Overground size

Underground size

Useful area

Area for rent

Floors

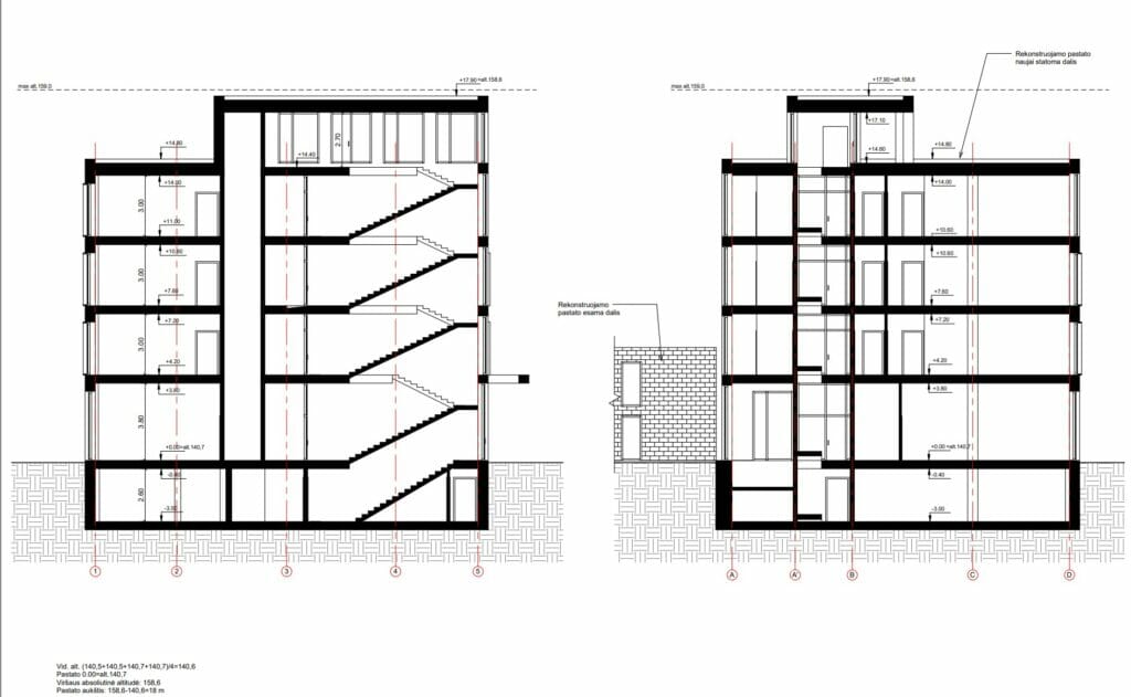
4

Height

17.5 m

Floor size

Office class

-

Energy class

-

Underground floors

1

Transport

12

0

0

Latest viewing

Project proposals
Status

Documents
These are project proposals submitted for public viewing

View the document

Info source

Open


Related companies

Advertisement
Remarco
Remarco
Prekybos ir biurų erdvės
Markučiuose statomame „Remarco“ verslo centre - prekybos ir biurų patalpos nuomai nuo 50 kv.m.

Location   Embed

Planned Reconstruction
Begin

-

End

-

Stages
Project ID