www.citify.eu
Statement date: 2026-03-11 12:44:26
Updated: 2024-07-19

Northway Molėtų pl. 7

Molėtų pl. 7, Verkiai, Vilnius

Health center

-

Financing

-

Territory

Area size

1.0080 ha

Area density

32 %

Area intensity

0.63

Building footprint

3 255,00 m2

Amount of greenery

- %

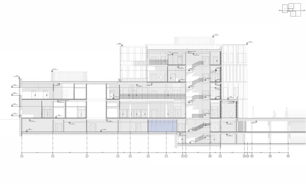
Technical parameters

Volume

Gross size

13 064,00 m2

Overground size

Underground size

Useful area

Floors

4

Height

20 m

Energy class

A++

Underground floors

2

Transport

130

20

30

Latest viewing

Related companies

Advertisement
Remarco
Remarco
Prekybos ir biurų erdvės
Markučiuose statomame „Remarco“ verslo centre - prekybos ir biurų patalpos nuomai nuo 50 kv.m.

Location   Embed

Planned New construction
Begin

-

End

-

Stages
Project ID