www.citify.eu
Statement date: 2026-02-17 10:38:59
Updated: 2025-10-11

Omberg Pušaloto g.

Pušaloto g., Pašilaičiai, Vilnius

Multi apartment

-

Certificate

-

Apartment information

Sales
We don't have this data
Quantity

185

Apartment sizes

32 - 78 m2

Price per square

- €

Territory

Area size

0.7615 ha

Area density

34 %

Area intensity

1.31

Building footprint

2 584,00 m2

Amount of greenery

37 %

Technical parameters

Volume

Gross size

14 626,00 m2

Overground size

Underground size

Useful area

Commercial premises

0 m2

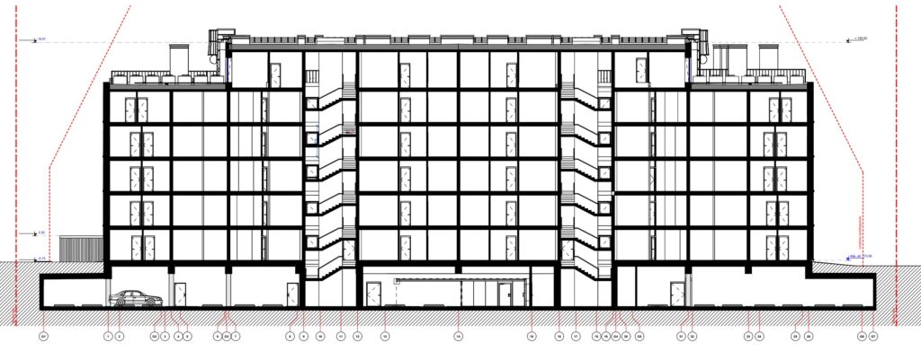
Floors

6

Height

19.7 m

Energy class

A++

Underground floors

1

Transport

145

31

64

Latest viewing

Project proposals
Status

Documents
These are project proposals submitted for public viewing

View the document View the document

Info source

Open


Previous viewings

Project proposals
Documents
These are project proposals submitted for public viewing

View the document View the document

Info source

Open


Related companies

Advertisement
SAKAI
SAKAI
Startavo antrasis etapas
Antrajame SAKŲ etape statomi 3- 4 aukštų vilas primenantys namai su išskirtinai jaukia kaimynyste – tik iki 17 butų name.

Location   Embed

Planned New construction
Begin

-

End

-

Stages
Project ID