www.citify.eu
Statement date: 2025-12-09 01:05:42
Updated: 2024-11-23

PB office

Senosios Pilaitės kel. 1, Pilaitė, Vilnius

Office center • Other commercial

-

Developer

Kenova NT

Certificate

-

Territory

Area size

0.3046 ha

Area density

39 %

Area intensity

0.71

Building footprint

0,00 m2

Amount of greenery

10 %

Technical parameters

Volume

Gross size

2 325,87 m2

Overground size

Underground size

Useful area

Area for rent

Floors

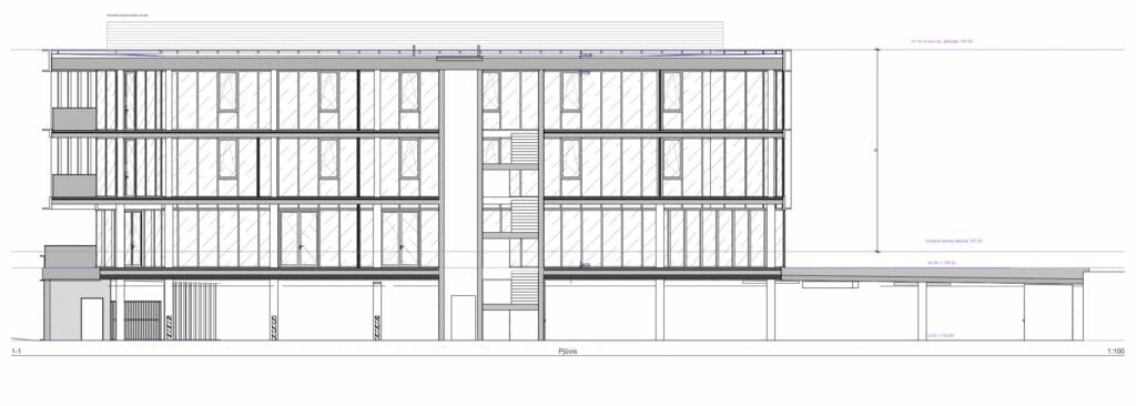
3

Height

10 m

Floor size

Office class

-

Energy class

A++

Underground floors

1

Transport

55

0

10

Latest viewing

Project proposals
Status

Documents
These are project proposals submitted for public viewing

View the document

Info source

Open


Related companies

Advertisement
MO VILLAS
MO VILLAS
Įsigykite vieni pirmųjų
Išskirtinis projektas Naujosiose Justiniškėse su unikalia rekreacine zona šalia miško ir Buivydiškių tvenkinių. Kainos nuo 97 000 €!

Location   Embed

Finished New construction
Begin

2023 Q3

End

2024 Q4

Stages
Project ID