www.citify.eu
Statement date: 2026-02-13 12:35:05
Updated: 2025-08-19

Piromonto g. 17

Piromonto g. 17, Žirmūnai, Vilnius

Multi apartment

-

Developer

Private person

Certificate

-

Apartment information

Sales
We don't have this data
Quantity

14

Apartment sizes

30 - 83 m2

Price per square

- €

Territory

Area size

0.0918 ha

Area density

40 %

Area intensity

1

Building footprint

0,00 m2

Amount of greenery

35 %

Technical parameters

Volume

Gross size

1 033,00 m2

Overground size

Underground size

Useful area

Commercial premises

59 m2

Floors

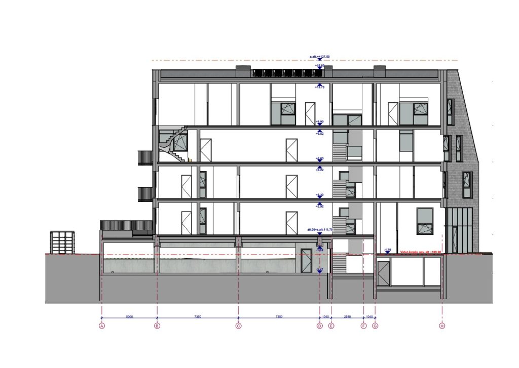
4

Height

16.8 m

Energy class

A++

Underground floors

1

Transport

11

1

9

Latest viewing

Project proposals
Status

Documents
These are project proposals submitted for public viewing

View the document View the document

Info source

Open


Related companies

Advertisement
U128
U128
Butai Žvėryne
Butai šiaurinėje Žvėryno dalyje šalia Panoramos. Aukštos lubos ir erdvūs balkonai. Statybų pabaiga jau artėja, registruokis apžiūrai.

Location   Embed

Planned New construction
Begin

-

End

-

Stages
Project ID