www.citify.eu
Statement date: 2026-03-16 04:18:40
Updated: 2025-08-14

Santariškių g. 1

Santariškių g. 1, Verkiai, Vilnius

Hospital

-

Financing

-

Territory

Area size

- ha

Area density

19.13 %

Area intensity

-

Building footprint

0,00 m2

Amount of greenery

- %

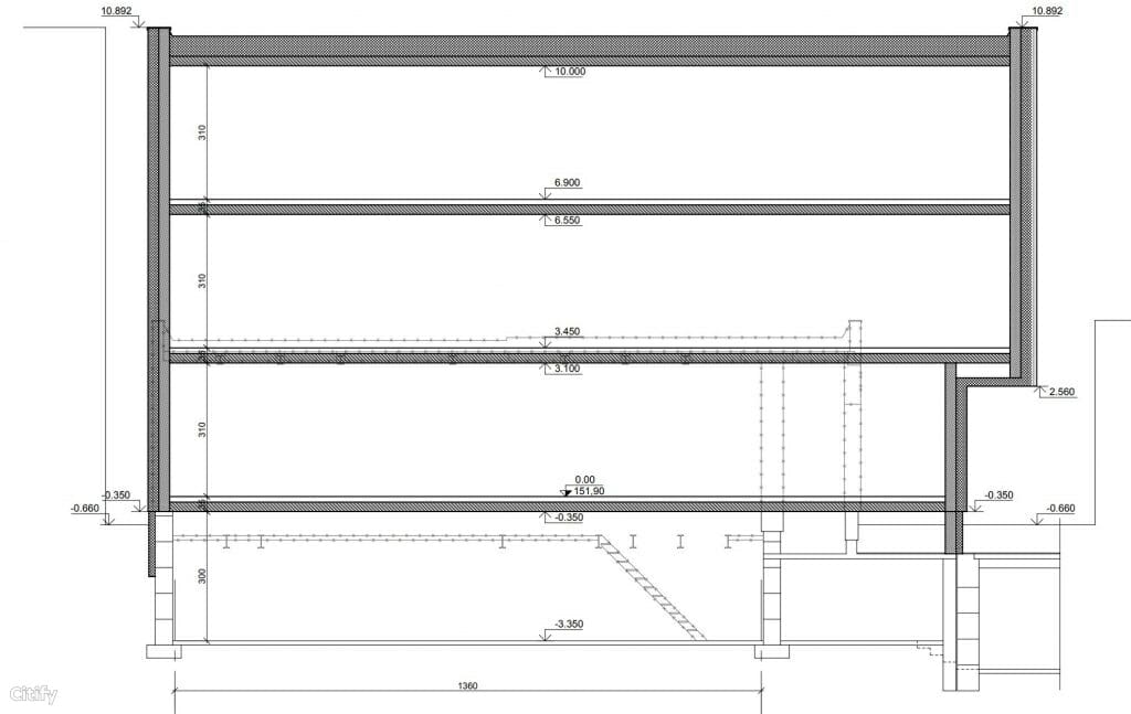
Technical parameters

Volume

Gross size

479,20 m2

Overground size

Underground size

Useful area

Floors

3

Height

11.55 m

Energy class

A++

Underground floors

1

Transport

-

0

0

Latest viewing

Project proposals
Status

Documents
These are project proposals submitted for public viewing

View the document

Info source

Open


Related companies

Advertisement
Remarco
Remarco
Prekybos ir biurų erdvės
Markučiuose statomame „Remarco“ verslo centre - prekybos ir biurų patalpos nuomai nuo 50 kv.m.

Location   Embed

Planned Reconstruction
Begin

-

End

-

Stages
Project ID