www.citify.eu
Statement date: 2026-03-11 12:11:51
Updated: 2026-03-02

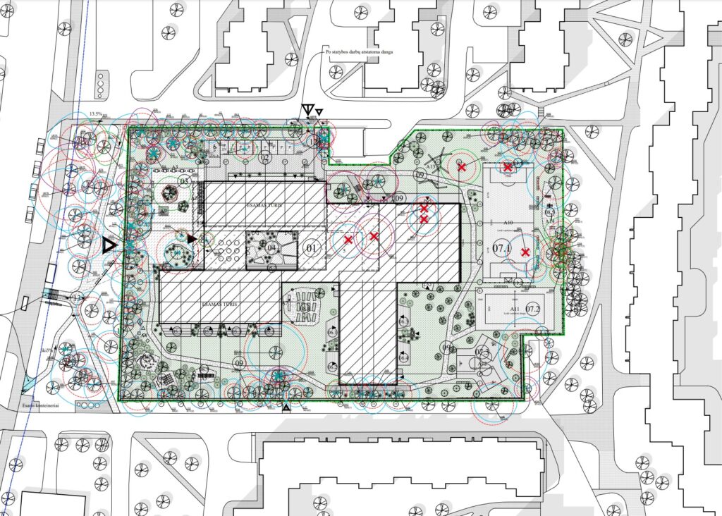
Šeškinės pradinės mokyklos rekonstrukcija

Šeškinės g. 15, Šeškinė, Vilnius

Primary and secondary education

-

Financing

-

Territory

Area size

1.0683 ha

Area density

29 %

Area intensity

0.37

Building footprint

0,00 m2

Amount of greenery

52 %

Technical parameters

Volume

Gross size

4 600,00 m2

Overground size

Underground size

Useful area

Floors

2

Height

10.93 m

Energy class

A++

Underground floors

0

Transport

10

0

20

Latest viewing

Project proposals
Status

Documents
These are project proposals submitted for public viewing

View the document View the document

Info source

Open


Related companies

Advertisement
Remarco
Remarco
Prekybos ir biurų erdvės
Markučiuose statomame „Remarco“ verslo centre - prekybos ir biurų patalpos nuomai nuo 50 kv.m.

Location   Embed

Planned Reconstruction
Begin

2026

End

2027

Stages
Project ID