www.citify.eu
Izraksta laiks: 2026-05-10 04:35:04
Atjaunināts: 2024-11-03

LINK TEN

Linkmenų g. 19, Šnipiškės, Vilnius

Daudzdzīvokļu nams

9 000 000

Projekta attīstītājs

Palatinas

Citus

Sertifikāts

-

Dzīvokļu informācija

Pārdošanas informācija
Pieejami: 0 (0%) Rezervēti: 0 (0%)Pārdoti: 115 (100%)
Kopā

115

Dzīvokļu platība

28 - 89 m2

Cena par kvadrātmetru

4 244 - 4 244 €

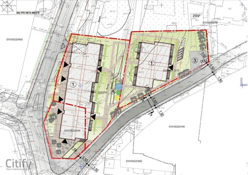
Teritorija

Teritorijas kopējā platība

0.4457 ha

Apbūves blīvums

40 %

Apbūves intensitāte

1.32

Apbūves laukums

0,00 m2

Brīvā zaļā teritorija

30 %

Tehniskie parametri

Būvtilpums

Kopējā telpu platība

10 500,00 m2

Virszemes stāvu platība

Pazemes stāvu platība

Lietderīgā platība

Komercplatības

378.16 m2

Virszemes stāvu skaits

6

Būves augstums

20 m

Energoefektivitātes klase

A+

Pazemes stāvu skaits

2

Transports

120

49

45

Pēdējā apskate

Projektu priekšlikumi
Statuss

2020-01-06 17:00
Konstitucijos pr. 3-224, Vilnius
Dokumenti
Šie ir publiskajai apspriešanai iesniegtie projekta materiāli

Skatīt dokumentu

Informācijas avots

Atvērt


Iesaistītie uzņēmumi

Reklāma
Užupio personos
Užupio personos
Gyvenkite Užupyje
Nuolaidos butams Užupyje iki 27 000 €! Pasinaudokite išskirtiniu pasiūlymu, nes progų apsigyventi pastatytame projekte liko mažiau nei 20.

Atrašanās vieta   Iegult

Realizēts Jauna būvniecība
Būvdarbu sākums

2021 Q1

Būvdarbu beigas

2022 Q4

Stadijas
BIS lietas numurs