www.citify.eu
Išrašo laikas: 2025-11-15 20:30:59
Atnaujinta: 2025-11-06

Business Stadium 5

Rinktinės g. 3, Žirmūnai, Vilnius

Verslo centras

-

Statytojas

Hanner

Promola

Sertifikatas

-

Teritorija

Teritorijos dydis

- ha

Užstatymo tankumas

22.3 %

Užstatymo intensyvumas

0.64

Užstatymo plotas

2 427,12 m2

Želdynų kiekis

25 %

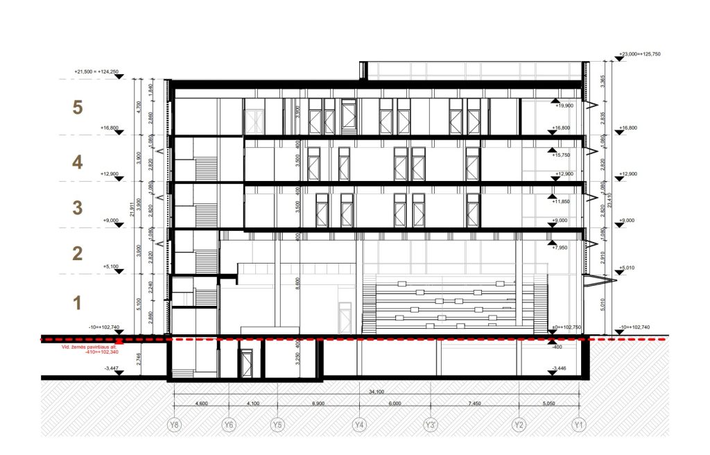
Techniniai parametrai

Tūris

Bendras plotas

7 925,91 m2

Antžeminis plotas

Požeminis plotas

Naudingas plotas

Plotas nuomai

Aukštų skaičius

5

Aukštis

23.41 m

Aukšto plotas

Biurų klasė

-

Energetinė klasė

A++

Požeminiai aukštai

1

Transportas

72

15

60

Paskutinis svarstymas

Projektiniai pasiūlymai
Statusas

2024-10-24 17:00
Dokumentai
Tai yra visuomenės aptarimui pateikti pasiūlymai ir gali skirtis nuo galutinių savivaldybės patvirtintų sprendinių

Peržiūrėti dokumentą Peržiūrėti dokumentą

Informacijos šaltinis

Atidaryti


Susijusios įmonės

Reklama
U128 Butai Žvėryne
U128 Butai Žvėryne
Butai šiaurinėje Žvėryno dalyje šalia Panoramos. Aukštos lubos ir erdvūs balkonai. Statybų pabaiga jau artėja, registruokis apžiūrai.

Vieta   Įterpti

Statomas Nauja statyba
Pradžia

2025 Q3

Pabaiga

-

Etapai
Projekto numeris