www.citify.eu
Avalduse kuupäev: 2026-05-05 15:55:45
Uuendatud: 2023-04-22

P. Lukšio g. 2

P. Lukšio g. 2, Žirmūnai, Vilnius

Hotell • Büroohoone

-

Arendaja

Baldų rojus

Sertifikaat

-

Territoorium

Ala suurus

- ha

Ala tihedus

39.74 %

Ala intensiivsus

Maapealne ehitusalune pind

0,00 m2

Haljastus

- %

Tehnilised parameetrid

Maht

Brutopind

7 056,24 m2

Maapealne brutopind

Maa-alune brutopind

Netopind

Üüritav ala

Maapealsed korrused

8

Kõrgus

29.68 m

Korruse pindala

Äripinna klass

-

Energiaklass

A++

Maa-alused korrused

1

Parkimine

396

0

108

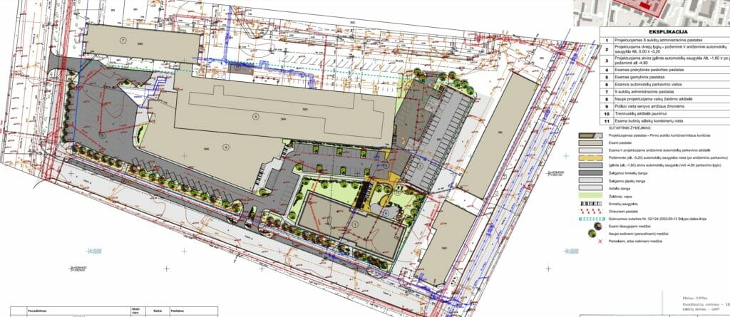
Avalik väljapanek

Projektiettepanekud
Staatus

2022-08-22 15:00
Dokumendid
Need on projektide ettepanekud, mis on esitatud avalikule väljapanekule.

Vaata dokumenti

Infoallikas

Ava


Seotud ettevõtted

Reklaam
Užupio personos
Užupio personos
Gyvenkite Užupyje
Nuolaidos butams Užupyje iki 27 000 €! Pasinaudokite išskirtiniu pasiūlymu, nes progų apsigyventi pastatytame projekte liko mažiau nei 20.

Asukoht   Manusta

Planeeritud Uus ehitis
Algus

-

Lõpp

-

Etapid
Projekti ID