www.citify.eu
Statement date: 2025-12-12 04:54:03
Updated: 2025-08-14

Peluonės g. 6

Peluonės g. 6, Verkiai, Vilnius

Shopping center

-

Developer

Sonus exsertus

Certificate

-

Territory

Area size

0.6547 ha

Area density

37 %

Area intensity

-

Building footprint

2 207,00 m2

Amount of greenery

- %

Technical parameters

Volume

Gross size

2 973,21 m2

Overground size

Underground size

Useful area

Area for rent

Floors

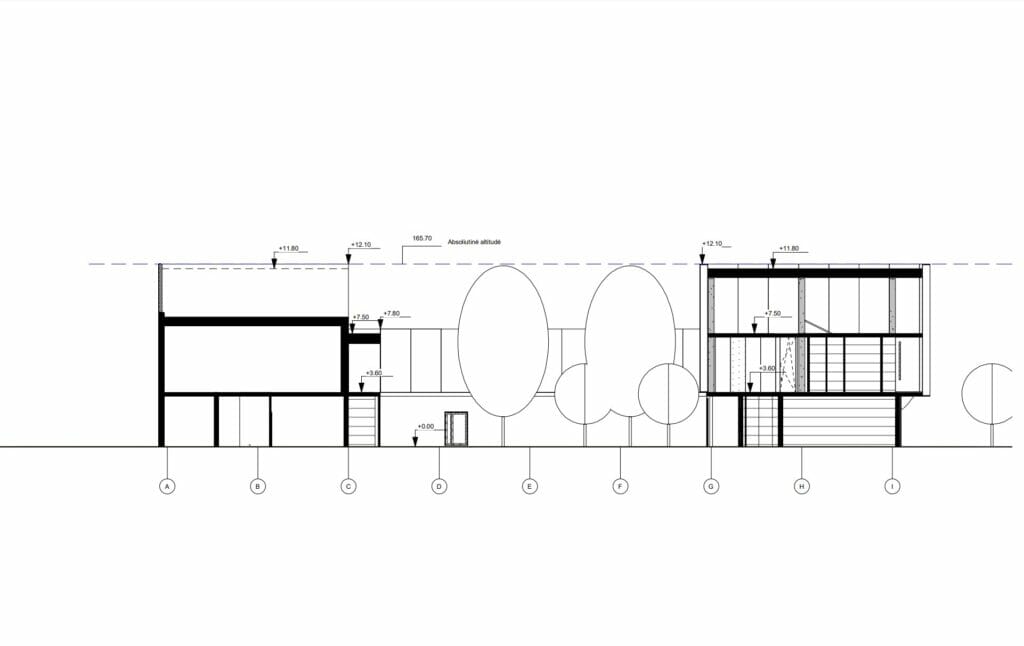
2

Height

14 m

Floor size

Office class

-

Energy class

A++

Underground floors

0

Transport

20

4

0

Latest viewing

Project proposals
Status

Documents
These are project proposals submitted for public viewing

View the document

Info source

Open


Related companies

Advertisement
MO VILLAS
MO VILLAS
Įsigykite vieni pirmųjų
Išskirtinis projektas Naujosiose Justiniškėse su unikalia rekreacine zona šalia miško ir Buivydiškių tvenkinių. Kainos nuo 97 000 €!

Location   Embed

Planned New construction
Begin

-

End

-

Stages
Project ID