www.citify.eu
Avalduse kuupäev: 2026-04-30 15:27:56
Uuendatud: 2025-08-13

Santakos g. 10

Santakos g. 10, Grigiškės, Vilnius

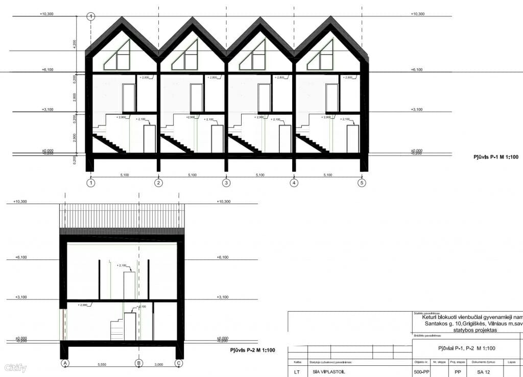
Ridaelamu

-

Arendaja

SIA VIPLASTOIL

Sertifikaat

-

Majade info

Müük
Meil pole neid andmeid
Kogus

4

Majade suurused

97.4 m2

Ruutmeetri hind

- €

Territoorium

Ala suurus

0.1003 ha

Ala tihedus

20 %

Ala intensiivsus

-

Maapealne ehitusalune pind

0,00 m2

Haljastus

- %

Tehnilised parameetrid

Maht

Brutopind

389,60 m2

Maapealne brutopind

Maa-alune brutopind

Netopind

Äripinnad

0 m2

Maapealsed korrused

2

Kõrgus

10.5 m

Energiaklass

A+

Maa-alused korrused

0

Parkimine

4

0

0

Avalik väljapanek

Projektiettepanekud
Staatus

2021-04-08 17:00
Transliacija internetu: meet.google.com/ayd-ifpe-rka
Dokumendid
Need on projektide ettepanekud, mis on esitatud avalikule väljapanekule.

Vaata dokumenti

Infoallikas

Ava


Seotud ettevõtted

Reklaam
Metų laikai
Metų laikai
4 etapas jau čia!
Dar 187 butai pirkėjų pamėgtame projekte „Metų laikai“. Prasidėjo paskutinio, 4 etapo pardavimai – išsirinkite geriausią variantą jau dabar.

Asukoht   Manusta

Planeeritud Uus ehitis
Algus

-

Lõpp

-

Etapid
Projekti ID