www.citify.eu
Avalduse kuupäev: 2026-05-07 06:13:54
Uuendatud: 2025-08-05

Betono aklg. 1

Betono aklg. 1, Vilkpėdė, Vilnius

Muu äri

-

Arendaja

Viklonas

Sertifikaat

-

Territoorium

Ala suurus

0.1185 ha

Ala tihedus

66.4 %

Ala intensiivsus

0.502

Maapealne ehitusalune pind

0,00 m2

Haljastus

- %

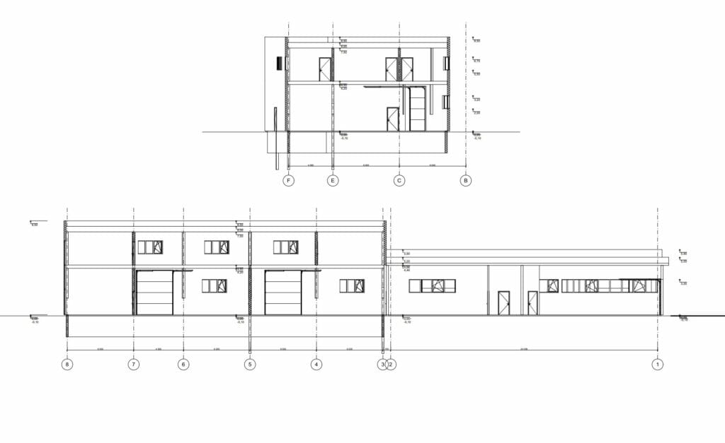
Tehnilised parameetrid

Maht

Brutopind

987,35 m2

Maapealne brutopind

Maa-alune brutopind

Netopind

Üüritav ala

Maapealsed korrused

2

Kõrgus

8.6 m

Korruse pindala

Äripinna klass

-

Energiaklass

B

Maa-alused korrused

0

Parkimine

-

0

0

Avalik väljapanek

Projektiettepanekud
Staatus

Dokumendid
Need on projektide ettepanekud, mis on esitatud avalikule väljapanekule.

Vaata dokumenti

Infoallikas

Ava


Seotud ettevõtted

Reklaam
Užupio personos
Užupio personos
Gyvenkite Užupyje
Nuolaidos butams Užupyje iki 27 000 €! Pasinaudokite išskirtiniu pasiūlymu, nes progų apsigyventi pastatytame projekte liko mažiau nei 20.

Asukoht   Manusta

Planeeritud Rekonstrueerimine
Algus

-

Lõpp

-

Etapid
Projekti ID