www.citify.eu
Avalduse kuupäev: 2026-04-29 21:55:09
Uuendatud: 2022-03-24

Bukčių g. 64

Bukčių g. 64, Lazdynai, Vilnius

Hotell

-

Sertifikaat

-

Pinnad info

Müük
Meil pole neid andmeid
Kogus

9

Pinnad suurused

- m2

Ruutmeetri hind

- €

Territoorium

Ala suurus

0.0843 ha

Ala tihedus

%

Ala intensiivsus

Maapealne ehitusalune pind

0,00 m2

Haljastus

%

Tehnilised parameetrid

Maht

Brutopind

1 448,59 m2

Maapealne brutopind

Maa-alune brutopind

Netopind

Äripinnad

34 m2

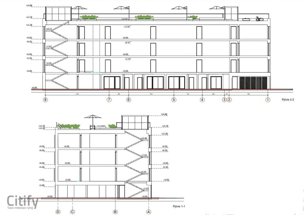
Maapealsed korrused

4

Kõrgus

14.8 m

Energiaklass

B

Maa-alused korrused

0

Parkimine

28

0

0

Avalik väljapanek

Projektiettepanekud
Staatus

2019-11-27 17:00
Konstitucijos pr. 3-242, Vilnius
Dokumendid
Need on projektide ettepanekud, mis on esitatud avalikule väljapanekule.

Vaata dokumenti

Infoallikas

Ava


Seotud ettevõtted

Reklaam
Metų laikai
Metų laikai
4 etapas jau čia!
Dar 187 butai pirkėjų pamėgtame projekte „Metų laikai“. Prasidėjo paskutinio, 4 etapo pardavimai – išsirinkite geriausią variantą jau dabar.

Asukoht   Manusta

Planeeritud Rekonstrueerimine
Algus

-

Lõpp

-

Etapid
Projekti ID