www.citify.eu
Avalduse kuupäev: 2026-05-07 00:35:50
Uuendatud: 2025-07-19

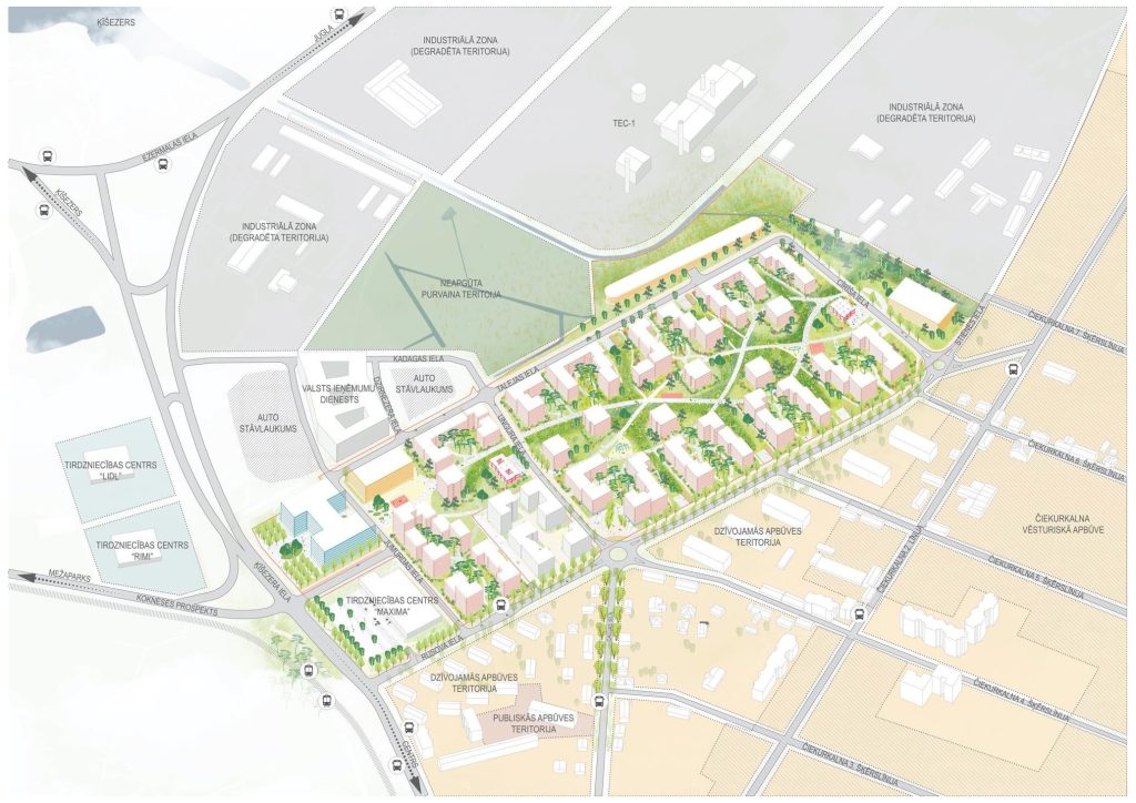
Ezerparks 4. kārta

Rusova iela, Talejas iela, Cirīša iela, Čiekurkalns, Rīga

Korterelamu

-

Arendaja

Vastint Latvia

Sertifikaat

-

Korterite info

Müük
Meil pole neid andmeid
Kogus

-

Korterite suurused

- m2

Ruutmeetri hind

- €

Territoorium

Ala suurus

19 ha

Ala tihedus

- %

Ala intensiivsus

-

Maapealne ehitusalune pind

0,00 m2

Haljastus

- %

Tehnilised parameetrid

Maht

Brutopind

0,00 m2

Maapealne brutopind

Maa-alune brutopind

Netopind

Äripinnad

- m2

Maapealsed korrused

0

Kõrgus

0 m

Energiaklass

-

Maa-alused korrused

0

Parkimine

-

0

0

Vaatamisi pole

Seotud ettevõtted

Reklaam
Get full access with Citify Pro membership
From 30 Eur / month
Find business opportunities with full data access and functionality.

Asukoht   Manusta

Planeeritud Uus ehitis
Algus

-

Lõpp

-

Etapid
Projekti ID