www.citify.eu
Avalduse kuupäev: 2026-04-29 22:44:19
Uuendatud: 2026-03-17

Gurių g. 129 daugiabučiai

Gurių g. 129, Naujoji Vilnia, Vilnius

Korterelamu

-

Arendaja

BC1

Sertifikaat

-

Korterite info

Müük
Meil pole neid andmeid
Kogus

71

Korterite suurused

- m2

Ruutmeetri hind

- €

Territoorium

Ala suurus

0.487817 ha

Ala tihedus

37.61 %

Ala intensiivsus

0.7823

Maapealne ehitusalune pind

0,00 m2

Haljastus

- %

Tehnilised parameetrid

Maht

Brutopind

7 049,11 m2

Maapealne brutopind

Maa-alune brutopind

Netopind

Äripinnad

- m2

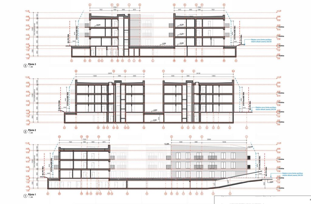
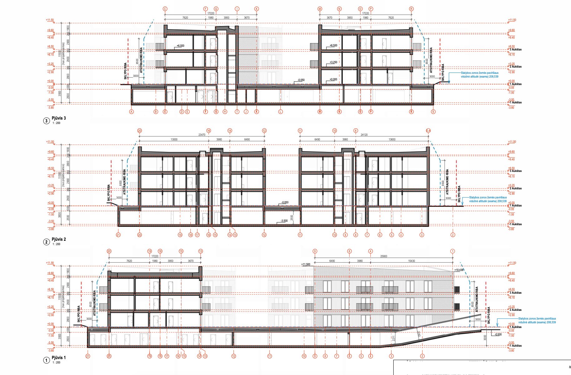
Maapealsed korrused

3

Kõrgus

11.5 m

Energiaklass

A++

Maa-alused korrused

1

Parkimine

89

18

12

Avalik väljapanek

Projektiettepanekud
Staatus

2026-04-03 17:00
Vilnius, Konstitucijos pr. 3-215
Dokumendid
Need on projektide ettepanekud, mis on esitatud avalikule väljapanekule.

Vaata dokumenti

Infoallikas

Ava


Seotud ettevõtted

Reklaam
Metų laikai
Metų laikai
4 etapas jau čia!
Dar 187 butai pirkėjų pamėgtame projekte „Metų laikai“. Prasidėjo paskutinio, 4 etapo pardavimai – išsirinkite geriausią variantą jau dabar.

Asukoht   Manusta

Planeeritud Uus ehitis
Algus

-

Lõpp

-

Etapid
Projekti ID