www.citify.eu
Avalduse kuupäev: 2026-04-29 21:01:43
Uuendatud: 2026-02-16

Jelgavas iela 24

Jelgavas iela 24, Torņakalns, Rīga

Korterelamu

-

Arendaja

Gaujas 8

Sertifikaat

-

Korterite info

Müük
Meil pole neid andmeid
Kogus

4

Korterite suurused

- m2

Ruutmeetri hind

- €

Territoorium

Ala suurus

0.3989 ha

Ala tihedus

- %

Ala intensiivsus

-

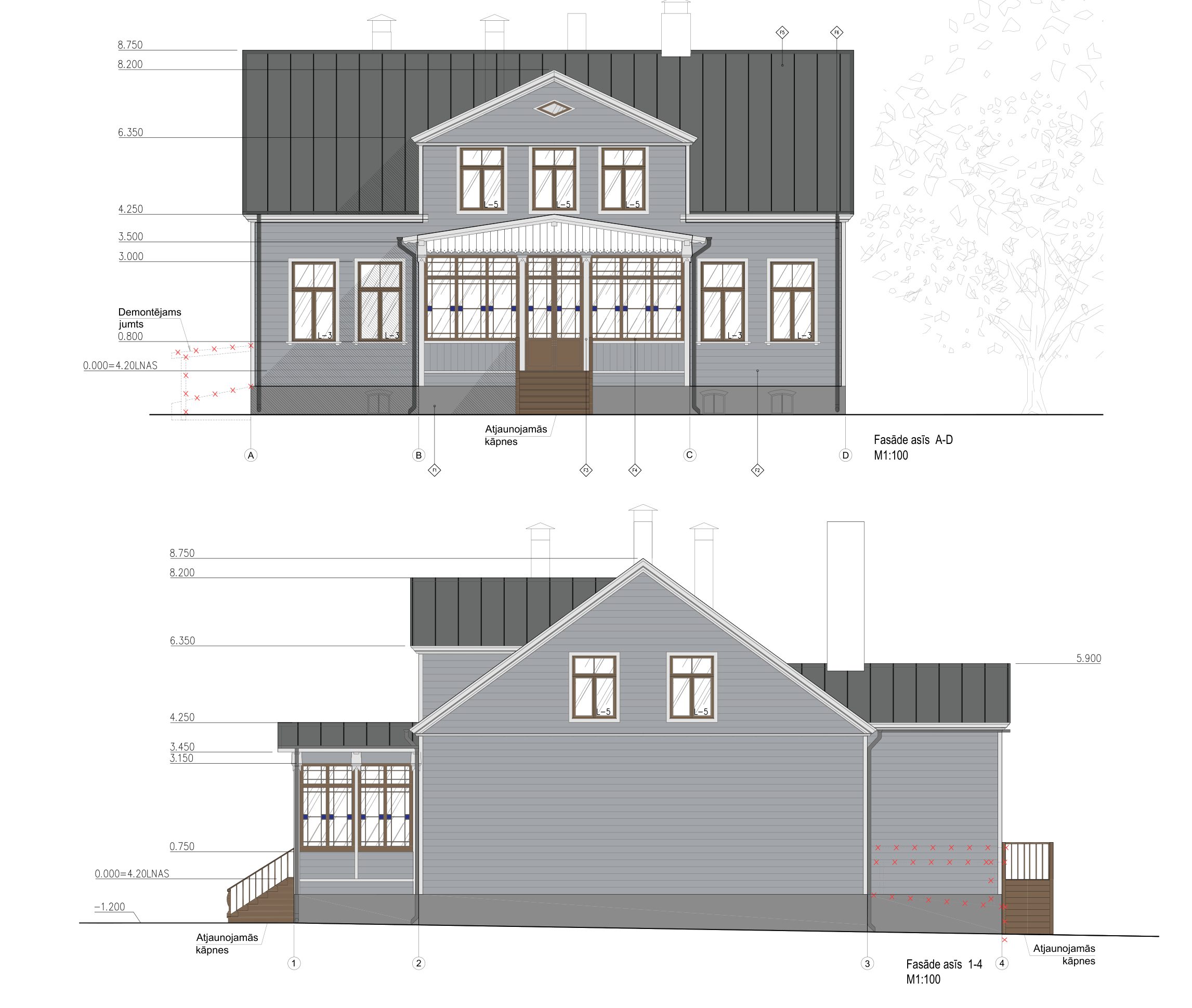
Maapealne ehitusalune pind

256,90 m2

Haljastus

- %

Tehnilised parameetrid

Maht

Brutopind

486,40 m2

Maapealne brutopind

Maa-alune brutopind

Netopind

Äripinnad

- m2

Maapealsed korrused

2

Kõrgus

8.75 m

Energiaklass

-

Maa-alused korrused

0

Parkimine

-

0

0

Vaatamisi pole

Seotud ettevõtted

Reklaam
Get full access with Citify Pro membership
From 30 Eur / month
Find business opportunities with full data access and functionality.

Asukoht   Manusta

Planeeritud Rekonstrueerimine
Algus

-

Lõpp

-

Etapid
Projekti ID