www.citify.eu
Avalduse kuupäev: 2026-05-04 20:08:20
Uuendatud: 2025-09-13

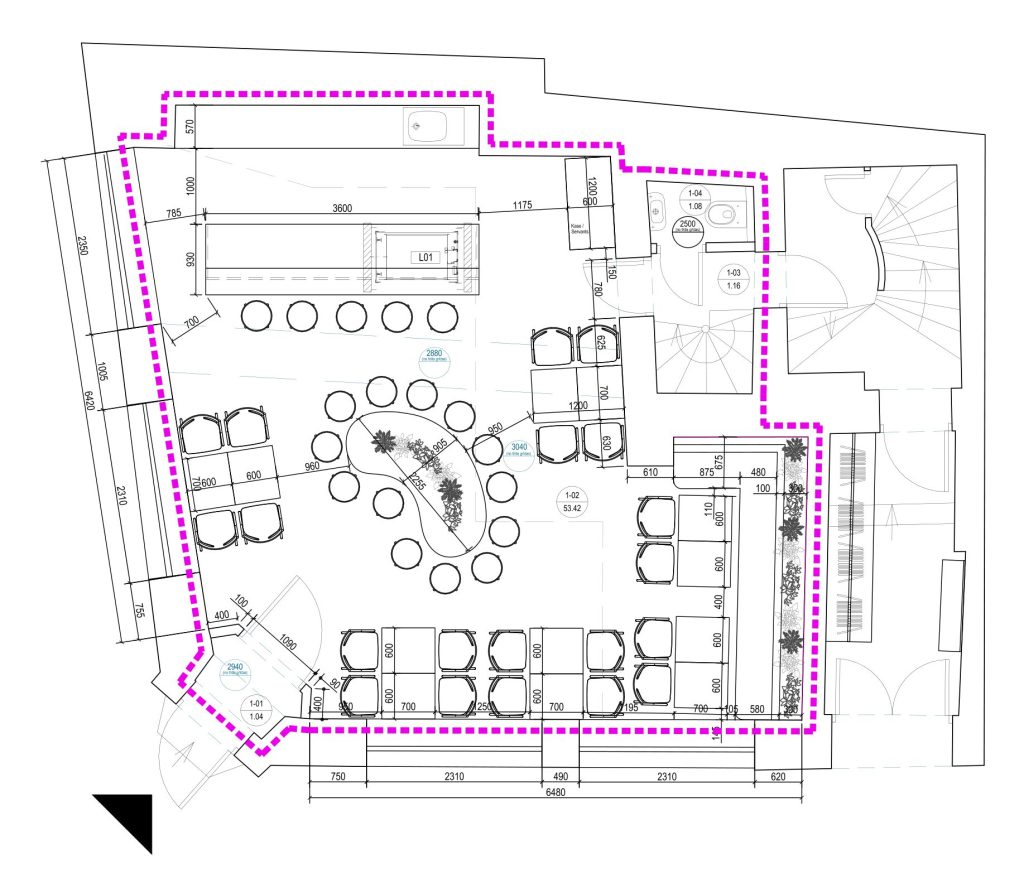
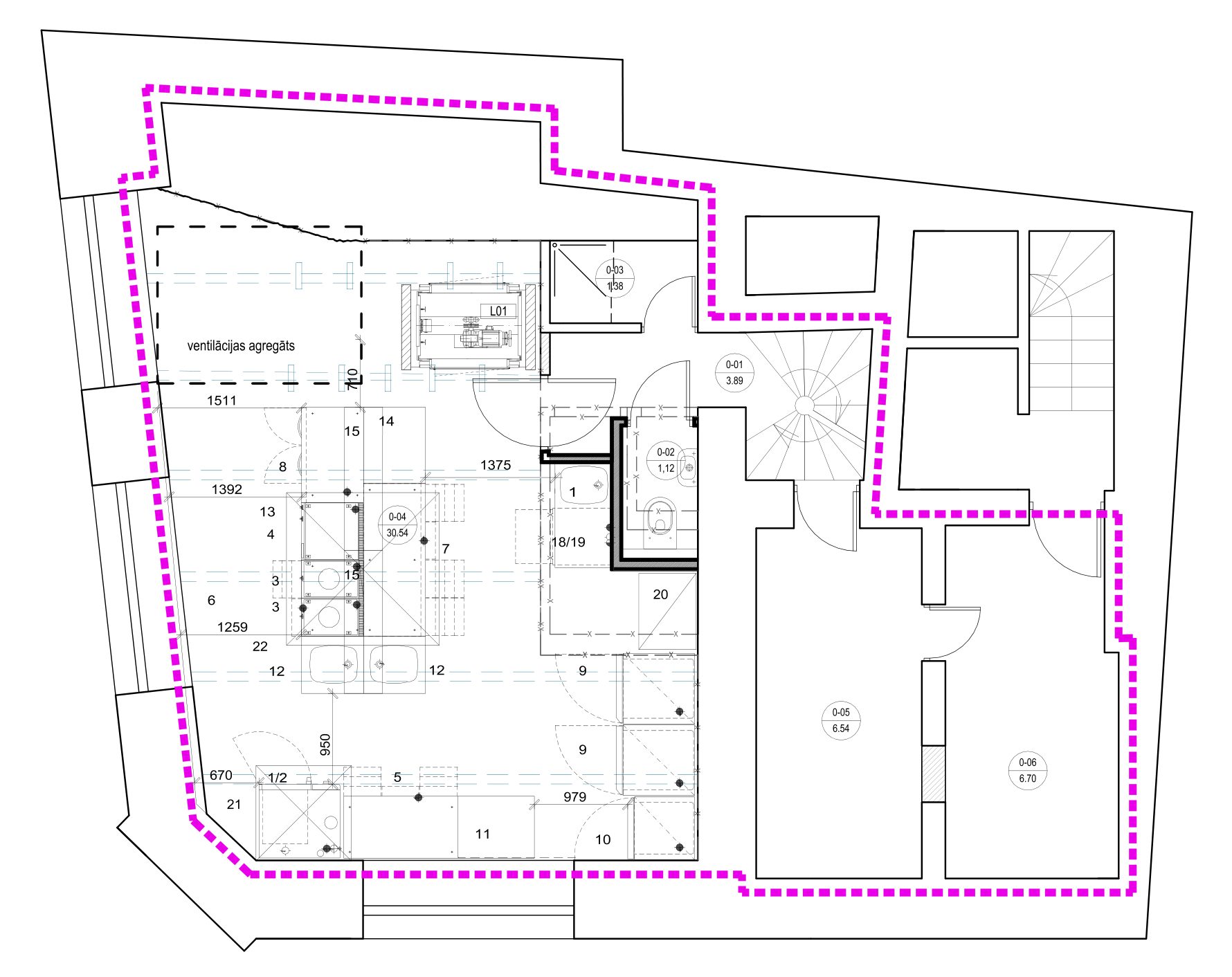
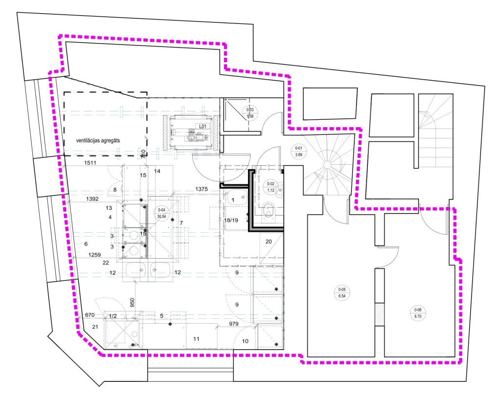
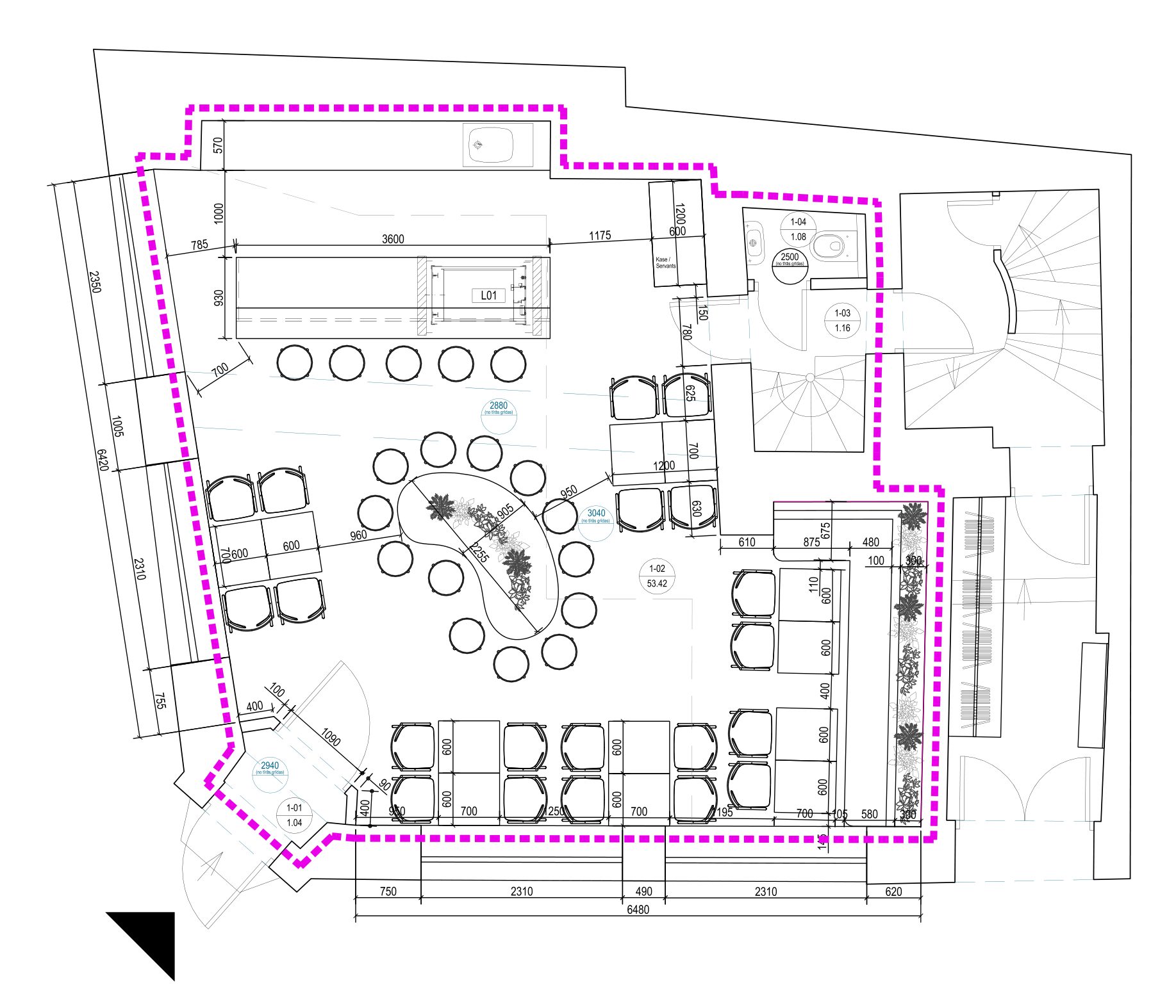
Kalēju iela 23 pārbūve

Kalēju iela 23, Vecpilsēta, Rīga

Toitlustusasutus

-

Arendaja

-

Sertifikaat

-

Territoorium

Ala suurus

- ha

Ala tihedus

- %

Ala intensiivsus

-

Maapealne ehitusalune pind

0,00 m2

Haljastus

- %

Tehnilised parameetrid

Maht

Brutopind

0,00 m2

Maapealne brutopind

Maa-alune brutopind

Netopind

Üüritav ala

Maapealsed korrused

0

Kõrgus

0 m

Korruse pindala

Äripinna klass

-

Energiaklass

-

Maa-alused korrused

0

Parkimine

-

0

0

Vaatamisi pole

Seotud ettevõtted

Reklaam
Get full access with Citify Pro membership
From 30 Eur / month
Find business opportunities with full data access and functionality.

Asukoht   Manusta

Ehitamisel Rekonstrueerimine
Algus

-

Lõpp

-

Etapid
Projekti ID