www.citify.eu
Avalduse kuupäev: 2026-02-15 21:59:10
Uuendatud: 2024-10-13

Knypavos g. 8C

Knypavos g. 8C, Pilaitė, Vilnius

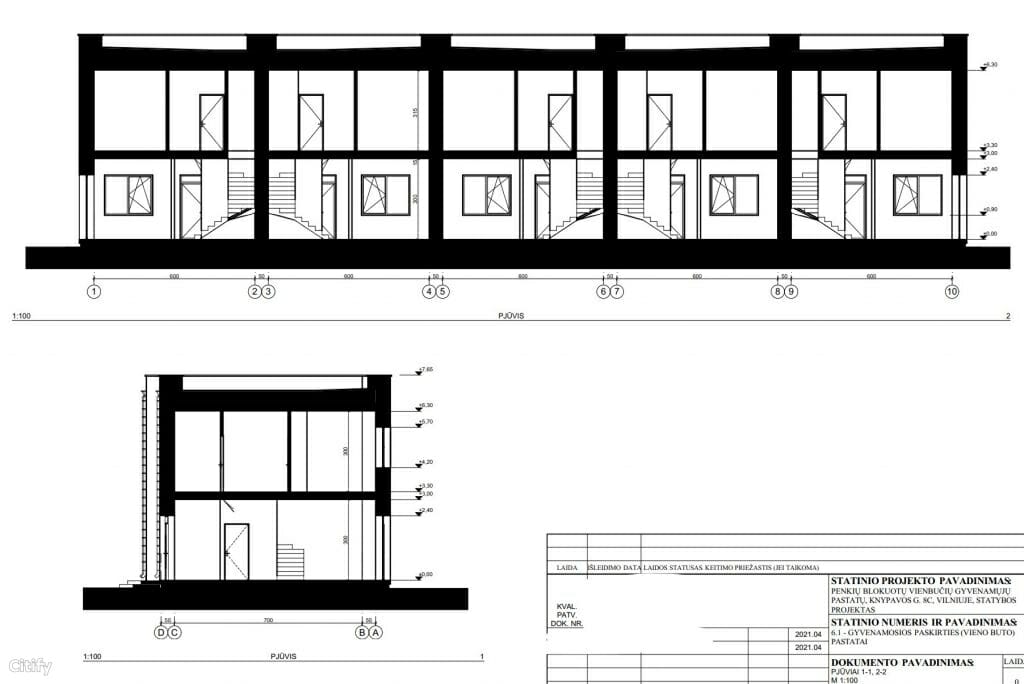
Ridaelamu

-

Arendaja

Kelsera

Sertifikaat

-

Majad info

Müük
Meil pole neid andmeid
Kogus

4

Majad suurused

79.8 m2

Ruutmeetri hind

- €

Territoorium

Ala suurus

0.1001 ha

Ala tihedus

28.5708 %

Ala intensiivsus

0.3986

Maapealne ehitusalune pind

286,00 m2

Haljastus

28.57 %

Tehnilised parameetrid

Maht

Brutopind

319,20 m2

Maapealne brutopind

Maa-alune brutopind

Netopind

Äripinnad

0 m2

Maapealsed korrused

2

Kõrgus

8 m

Energiaklass

A++

Maa-alused korrused

0

Parkimine

8

0

0

Avalik väljapanek

Projektiettepanekud
Staatus

Dokumendid
Need on projektide ettepanekud, mis on esitatud avalikule väljapanekule.

Vaata dokumenti

Infoallikas

Ava


Seotud ettevõtted

Reklaam
SAKAI
SAKAI
Startavo antrasis etapas
Antrajame SAKŲ etape statomi 3- 4 aukštų vilas primenantys namai su išskirtinai jaukia kaimynyste – tik iki 17 butų name.

Asukoht   Manusta

Valmis Uus ehitis
Algus

2023 Q2

Lõpp

2024 Q4

Etapid
Projekti ID