www.citify.eu
Avalduse kuupäev: 2026-04-30 02:26:40
Uuendatud: 2026-02-20

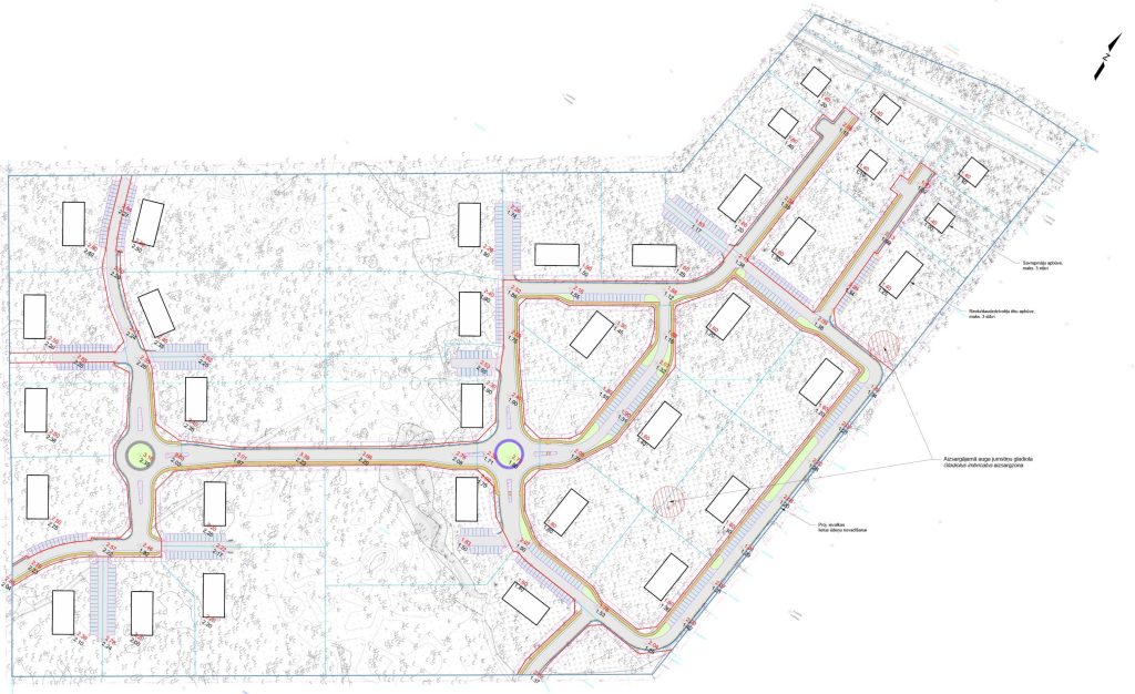
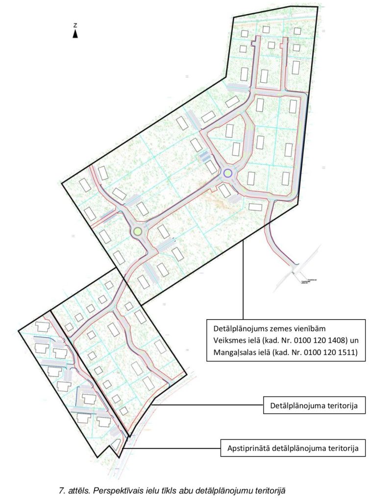
Liju ielas kvartāls

Liju iela, Mangaļsala, Rīga

Korterelamu • Eramajade rajoon

-

Arendaja

AP Vecrīga

Sertifikaat

-

Korterite info

Müük
Meil pole neid andmeid
Kogus

-

Korterite suurused

- m2

Ruutmeetri hind

- €

Territoorium

Ala suurus

18.7722 ha

Ala tihedus

- %

Ala intensiivsus

-

Maapealne ehitusalune pind

0,00 m2

Haljastus

- %

Tehnilised parameetrid

Maht

Brutopind

0,00 m2

Maapealne brutopind

Maa-alune brutopind

Netopind

Äripinnad

- m2

Maapealsed korrused

3

Kõrgus

0 m

Energiaklass

-

Maa-alused korrused

0

Parkimine

437

0

450

Vaatamisi pole

Seotud ettevõtted

Meediakajastused

Par IVN sākotnējā izvērtējuma veikšanu Mangaļsalā
2026-02-20  ·  rdpad.lv
Reklaam
Get full access with Citify Pro membership
From 30 Eur / month
Find business opportunities with full data access and functionality.

Asukoht   Manusta

Planeeritud Uus ehitis
Algus

-

Lõpp

-

Etapid
Projekti ID