www.citify.eu
Avalduse kuupäev: 2026-04-29 16:54:27
Uuendatud: 2024-11-25

Linkmenų 12

Linkmenų g. 12, Linkmenų g. 14, Šnipiškės, Vilnius

Büroohoone

5 000 000

Arendaja

LINI

Lini namai

Sertifikaat

-

Territoorium

Ala suurus

0.1216 ha

Ala tihedus

34.4 %

Ala intensiivsus

1.83

Maapealne ehitusalune pind

0,00 m2

Haljastus

- %

Tehnilised parameetrid

Maht

Brutopind

3 298,47 m2

Maapealne brutopind

Maa-alune brutopind

Netopind

Üüritav ala

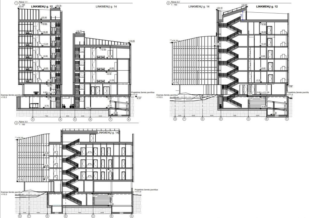
Maapealsed korrused

6

Kõrgus

24 m

Korruse pindala

Äripinna klass

A+

Energiaklass

A+

Maa-alused korrused

1

Parkimine

29

0

0

Avalik väljapanek

Projektiettepanekud
Staatus

2024-12-11 17:00
Dokumendid
Need on projektide ettepanekud, mis on esitatud avalikule väljapanekule.

Vaata dokumenti

Infoallikas

Ava


Eelmised vaatamised

Projektiettepanekud
Dokumendid
Need on projektide ettepanekud, mis on esitatud avalikule väljapanekule.

Vaata dokumenti

Infoallikas

Ava


Seotud ettevõtted

Reklaam
Metų laikai
Metų laikai
4 etapas jau čia!
Dar 187 butai pirkėjų pamėgtame projekte „Metų laikai“. Prasidėjo paskutinio, 4 etapo pardavimai – išsirinkite geriausią variantą jau dabar.

Asukoht   Manusta

Planeeritud Uus ehitis
Algus

-

Lõpp

2022 Q4

Etapid
Projekti ID