www.citify.eu
Avalduse kuupäev: 2026-04-30 21:34:18
Uuendatud: 2023-09-06

Liveup 1 etapas

Naugarduko g. 62, Naujamiestis, Vilnius

Korterelamu

-

Arendaja

Hanner

Lelija

Sertifikaat

-

Korterite info

Müük
Vaba: 0 (0%) Broneeritud: 0 (0%)Müüdud: 118 (100%)
Kogus

118

Korterite suurused

42 - 63 m2

Ruutmeetri hind

1855 - 2244 €

Territoorium

Ala suurus

0.5847 ha

Ala tihedus

33 %

Ala intensiivsus

1.39

Maapealne ehitusalune pind

0,00 m2

Haljastus

22 %

Tehnilised parameetrid

Maht

Brutopind

8 228,40 m2

Maapealne brutopind

Maa-alune brutopind

Netopind

Äripinnad

0 m2

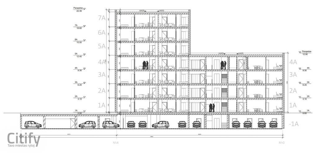
Maapealsed korrused

7

Kõrgus

22.85 m

Energiaklass

A+

Maa-alused korrused

1

Parkimine

134

0

0

Avalik väljapanek

Projektiettepanekud
Staatus

2019-07-12 17:00
Konstitucijos pr. 3-216, Vilnius
Dokumendid
Need on projektide ettepanekud, mis on esitatud avalikule väljapanekule.

Vaata dokumenti

Infoallikas

Ava


Seotud ettevõtted

Reklaam
Metų laikai
Metų laikai
4 etapas jau čia!
Dar 187 butai pirkėjų pamėgtame projekte „Metų laikai“. Prasidėjo paskutinio, 4 etapo pardavimai – išsirinkite geriausią variantą jau dabar.

Asukoht   Manusta

Valmis Uus ehitis
Algus

2019 Q4

Lõpp

2021

Etapid
Projekti ID