www.citify.eu
Avalduse kuupäev: 2026-04-29 20:57:00
Uuendatud: 2023-10-30

NordSpace Mozūriškių g. 21

Mozūriškių g. 21, Justiniškės, Vilnius

Muu äri

-

Arendaja

NordSpace

Sertifikaat

-

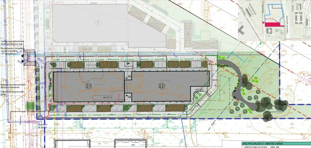
Territoorium

Ala suurus

0.6686 ha

Ala tihedus

28 %

Ala intensiivsus

0.4

Maapealne ehitusalune pind

1 835,00 m2

Haljastus

37 %

Tehnilised parameetrid

Maht

Brutopind

2 411,00 m2

Maapealne brutopind

Maa-alune brutopind

Netopind

Üüritav ala

Maapealsed korrused

1

Kõrgus

6.3 m

Korruse pindala

Äripinna klass

-

Energiaklass

-

Maa-alused korrused

0

Parkimine

44

0

6

Seotud ettevõtted

Reklaam
Metų laikai
Metų laikai
4 etapas jau čia!
Dar 187 butai pirkėjų pamėgtame projekte „Metų laikai“. Prasidėjo paskutinio, 4 etapo pardavimai – išsirinkite geriausią variantą jau dabar.

Asukoht   Manusta

Valmis Uus ehitis
Algus

2023 Q2

Lõpp

2023 Q4

Etapid
Projekti ID