www.citify.eu
Avalduse kuupäev: 2026-04-29 18:08:48
Uuendatud: 2025-06-26

Sauluvos g. 39

Sauluvos g. 39, Pilaitė, Vilnius

Korterelamu

-

Arendaja

Private person

Sertifikaat

-

Korterite info

Müük
Meil pole neid andmeid
Kogus

4

Korterite suurused

57 m2

Ruutmeetri hind

- €

Territoorium

Ala suurus

0.0613 ha

Ala tihedus

33.25 %

Ala intensiivsus

0.3962

Maapealne ehitusalune pind

203,85 m2

Haljastus

27.45 %

Tehnilised parameetrid

Maht

Brutopind

253,40 m2

Maapealne brutopind

Maa-alune brutopind

Netopind

Äripinnad

0 m2

Maapealsed korrused

2

Kõrgus

8.1 m

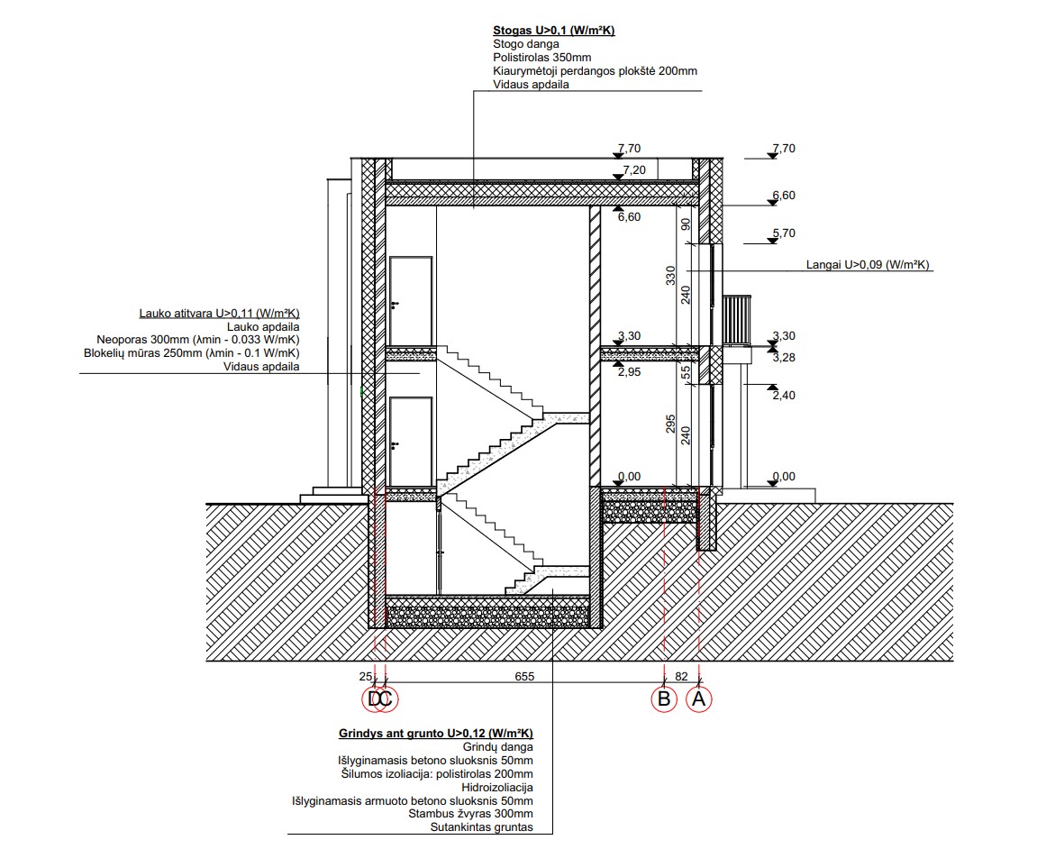
Energiaklass

A++

Maa-alused korrused

1

Parkimine

7

0

1

Avalik väljapanek

Projektiettepanekud
Staatus

Dokumendid
Need on projektide ettepanekud, mis on esitatud avalikule väljapanekule.

Vaata dokumenti

Infoallikas

Ava


Seotud ettevõtted

Reklaam
Metų laikai
Metų laikai
4 etapas jau čia!
Dar 187 butai pirkėjų pamėgtame projekte „Metų laikai“. Prasidėjo paskutinio, 4 etapo pardavimai – išsirinkite geriausią variantą jau dabar.

Asukoht   Manusta

Planeeritud Uus ehitis
Algus

-

Lõpp

-

Etapid
Projekti ID