www.citify.eu
Avalduse kuupäev: 2026-04-29 17:14:04
Uuendatud: 2026-02-17

Simono Grunau g. 119

Simono Grunau g. 119, Pilaitė, Vilnius

Ridaelamu

-

Arendaja

Kijota

Sertifikaat

-

Majade info

Müük
Meil pole neid andmeid
Kogus

21

Majade suurused

46 - 70 m2

Ruutmeetri hind

- €

Territoorium

Ala suurus

0.2515 ha

Ala tihedus

24 %

Ala intensiivsus

0.5

Maapealne ehitusalune pind

603,67 m2

Haljastus

57 %

Tehnilised parameetrid

Maht

Brutopind

1 861,47 m2

Maapealne brutopind

Maa-alune brutopind

Netopind

Äripinnad

0 m2

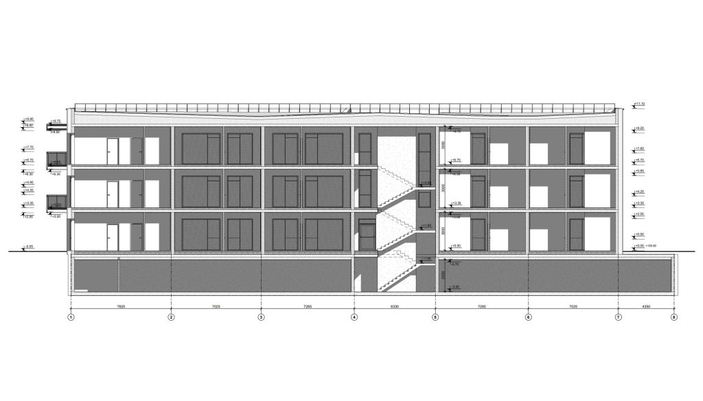
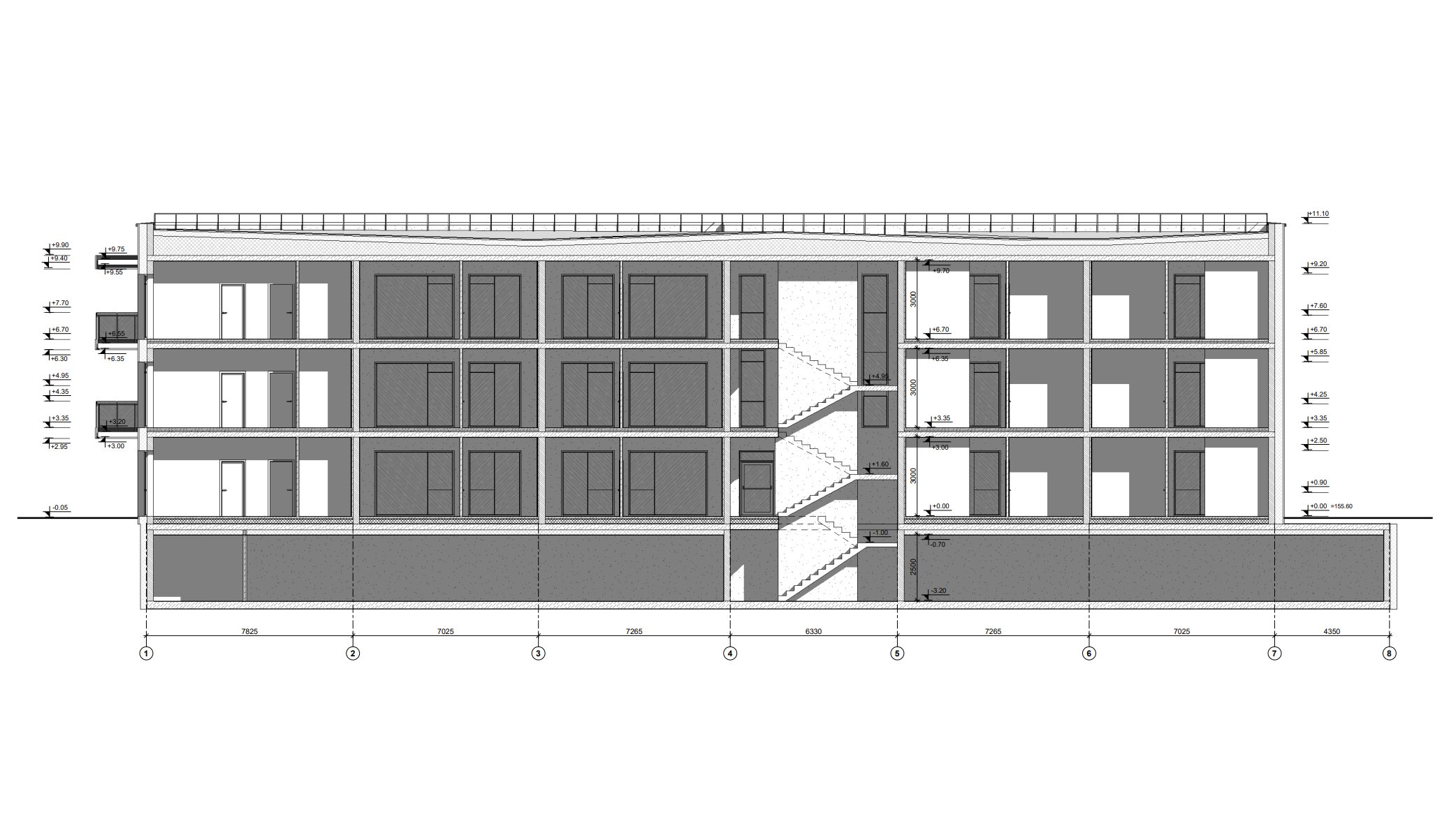
Maapealsed korrused

3

Kõrgus

11.13 m

Energiaklass

A++

Maa-alused korrused

1

Parkimine

21

5

10

Avalik väljapanek

Projektiettepanekud
Staatus

Dokumendid
Need on projektide ettepanekud, mis on esitatud avalikule väljapanekule.

Vaata dokumenti

Infoallikas

Ava


Eelmised vaatamised

Projektiettepanekud
Dokumendid
Need on projektide ettepanekud, mis on esitatud avalikule väljapanekule.

Vaata dokumenti

Infoallikas

Ava


Projektiettepanekud
Dokumendid
Need on projektide ettepanekud, mis on esitatud avalikule väljapanekule.

Vaata dokumenti Vaata dokumenti

Infoallikas

Ava


Seotud ettevõtted

Reklaam
Metų laikai
Metų laikai
4 etapas jau čia!
Dar 187 butai pirkėjų pamėgtame projekte „Metų laikai“. Prasidėjo paskutinio, 4 etapo pardavimai – išsirinkite geriausią variantą jau dabar.

Asukoht   Manusta

Planeeritud Uus ehitis
Algus

-

Lõpp

-

Etapid
Projekti ID