www.citify.eu
Avalduse kuupäev: 2026-05-14 20:29:42
Uuendatud: 2026-04-22

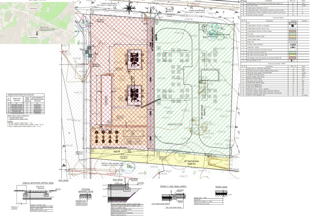
Teltonika High Tech Hill elektros pastotė

Svylos g. 9, Rasos, Vilnius

Energiajaam

12 800 000

Finantseerimine

-

Territoorium

Ala suurus

0.5603 ha

Ala tihedus

- %

Ala intensiivsus

-

Haljastus

- %

Tehnilised parameetrid

Maht

Brutopind

250,40 m2

Maapealne brutopind

Maa-alune brutopind

Netopind

Maapealsed korrused

1

Kõrgus

3.72 m

Maa-alused korrused

0

Pikkus

0 km

Parkimine

-

0

0

Avalik väljapanek

Projektiettepanekud
Staatus

Dokumendid
Need on projektide ettepanekud, mis on esitatud avalikule väljapanekule.

Vaata dokumenti

Infoallikas

Ava


Seotud ettevõtted

Reklaam
Užupio personos
Užupio personos
Gyvenkite Užupyje
Nuolaidos butams Užupyje iki 27 000 €! Pasinaudokite išskirtiniu pasiūlymu, nes progų apsigyventi pastatytame projekte liko mažiau nei 20.

Asukoht   Manusta

Ehitamisel Uus ehitis
Algus

2025 Q3

Lõpp

-

Etapid
Projekti ID