www.citify.eu
Avalduse kuupäev: 2026-04-30 17:03:09
Uuendatud: 2024-04-29

Vaišelgos g. 29

Vaišelgos g. 29, Verkiai, Vilnius

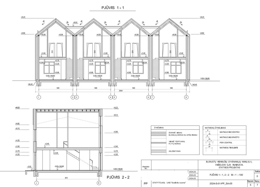
Ridaelamu

-

Arendaja

Sostinės nuoma

Sertifikaat

-

Majade info

Müük
Meil pole neid andmeid
Kogus

4

Majade suurused

91 m2

Ruutmeetri hind

- €

Territoorium

Ala suurus

0.1017 ha

Ala tihedus

26 %

Ala intensiivsus

0.36

Maapealne ehitusalune pind

264,60 m2

Haljastus

46.6 %

Tehnilised parameetrid

Maht

Brutopind

366,68 m2

Maapealne brutopind

Maa-alune brutopind

Netopind

Äripinnad

0 m2

Maapealsed korrused

2

Kõrgus

9.38 m

Energiaklass

A++

Maa-alused korrused

0

Parkimine

8

0

0

Avalik väljapanek

Projektiettepanekud
Staatus

Dokumendid
Need on projektide ettepanekud, mis on esitatud avalikule väljapanekule.

Vaata dokumenti

Infoallikas

Ava


Seotud ettevõtted

Reklaam
Metų laikai
Metų laikai
4 etapas jau čia!
Dar 187 butai pirkėjų pamėgtame projekte „Metų laikai“. Prasidėjo paskutinio, 4 etapo pardavimai – išsirinkite geriausią variantą jau dabar.

Asukoht   Manusta

Planeeritud Uus ehitis
Algus

-

Lõpp

-

Etapid
Projekti ID