www.citify.eu
Avalduse kuupäev: 2026-04-29 23:48:51
Uuendatud: 2025-09-15

Vandenio namai

Vandentiekio g. 60, Vilkpėdė, Vilnius

Korterelamu

-

Arendaja

Private person

Sertifikaat

-

Korterite info

Müük
Vaba: 0 (0%) Broneeritud: 0 (0%)Müüdud: 20 (100%)
Kogus

20

Korterite suurused

42 - 72 m2

Ruutmeetri hind

3 900 - 3 900 €

Territoorium

Ala suurus

0.1806 ha

Ala tihedus

25.15 %

Ala intensiivsus

0.7365

Maapealne ehitusalune pind

454,13 m2

Haljastus

34.34 %

Tehnilised parameetrid

Maht

Brutopind

1 330,04 m2

Maapealne brutopind

Maa-alune brutopind

Netopind

Äripinnad

0 m2

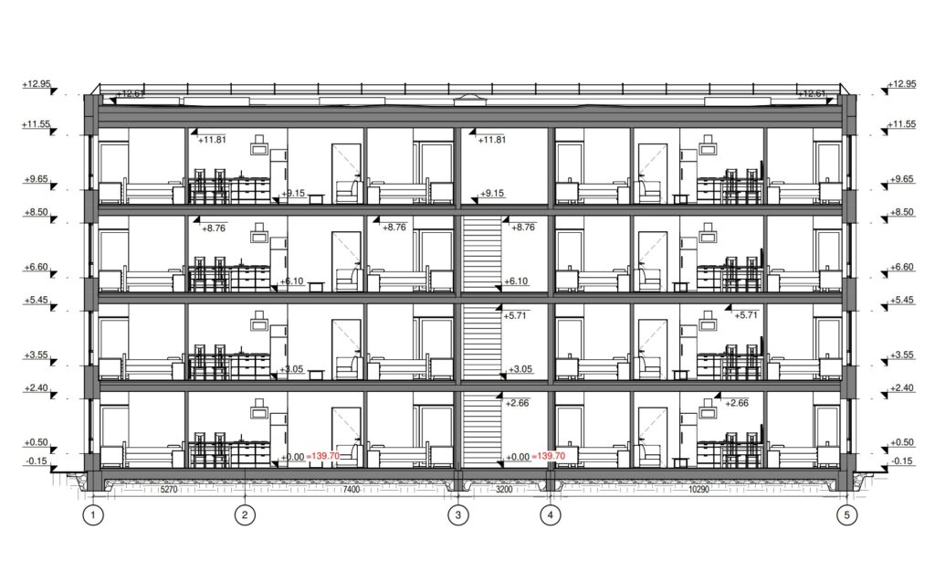
Maapealsed korrused

4

Kõrgus

13.11 m

Energiaklass

A++

Maa-alused korrused

0

Parkimine

15

0

0

Avalik väljapanek

Projektiettepanekud
Staatus

Dokumendid
Need on projektide ettepanekud, mis on esitatud avalikule väljapanekule.

Vaata dokumenti

Infoallikas

Ava


Seotud ettevõtted

Reklaam
Metų laikai
Metų laikai
4 etapas jau čia!
Dar 187 butai pirkėjų pamėgtame projekte „Metų laikai“. Prasidėjo paskutinio, 4 etapo pardavimai – išsirinkite geriausią variantą jau dabar.

Asukoht   Manusta

Valmis Uus ehitis
Algus

2024 Q2

Lõpp

2025 Q3

Etapid
Projekti ID