www.citify.eu
Izraksta laiks: 2026-04-29 15:21:48
Atjaunināts: 2025-09-15

Autoservisas Centrinė g. 15

Centrinė g. 15, Antakalnis, Vilniaus rajonas

Autosalons / Auto apkalpošanas centrs

-

Projekta attīstītājs

Private person

Sertifikāts

-

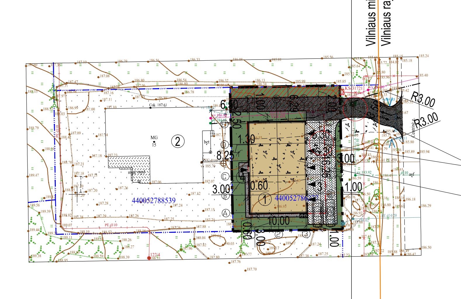
Teritorija

Teritorijas kopējā platība

0.0525 ha

Apbūves blīvums

35 %

Apbūves intensitāte

0.38

Apbūves laukums

181,00 m2

Brīvā zaļā teritorija

31.8 %

Tehniskie parametri

Būvtilpums

Kopējā telpu platība

196,74 m2

Virszemes stāvu platība

Pazemes stāvu platība

Lietderīgā platība

Izīrējamā platība

Virszemes stāvu skaits

1

Būves augstums

8.43 m

Stāva platība

Biroju klase

-

Energoefektivitātes klase

A++

Pazemes stāvu skaits

0

Transports

2

0

0

Pēdējā apskate

Projektu priekšlikumi
Statuss

Dokumenti
Šie ir publiskajai apspriešanai iesniegtie projekta materiāli

Skatīt dokumentu

Informācijas avots

Atvērt


Iesaistītie uzņēmumi

Reklāma
Metų laikai
Metų laikai
4 etapas jau čia!
Dar 187 butai pirkėjų pamėgtame projekte „Metų laikai“. Prasidėjo paskutinio, 4 etapo pardavimai – išsirinkite geriausią variantą jau dabar.

Atrašanās vieta   Iegult

Iecere Jauna būvniecība
Būvdarbu sākums

-

Būvdarbu beigas

-

Stadijas
BIS lietas numurs