www.citify.eu
Izraksta laiks: 2026-04-29 17:31:36
Atjaunināts: 2026-03-02

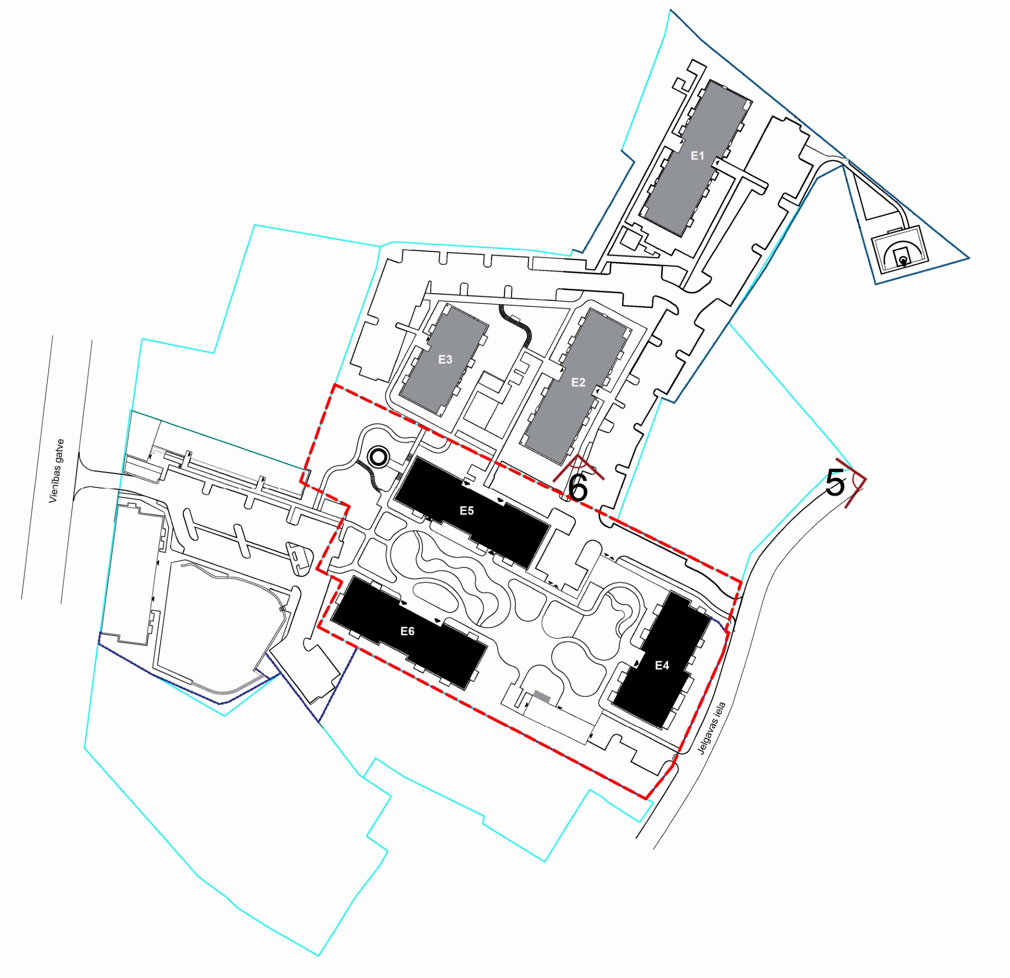
Hartmaņa kvartāls – 3. kārta, 5. ēka

Vienības gatve 24, Torņakalns, Rīga

Daudzdzīvokļu nams

-

Projekta attīstītājs

Bonava Latvija

Sertifikāts

-

Dzīvokļu informācija

Pārdošanas informācija
Dati nav pieejami
Kopā

-

Dzīvokļu platība

- m2

Cena par kvadrātmetru

- €

Teritorija

Teritorijas kopējā platība

- ha

Apbūves blīvums

- %

Apbūves intensitāte

-

Apbūves laukums

2 047,00 m2

Brīvā zaļā teritorija

- %

Tehniskie parametri

Būvtilpums

Kopējā telpu platība

0,00 m2

Virszemes stāvu platība

Pazemes stāvu platība

Lietderīgā platība

Komercplatības

- m2

Virszemes stāvu skaits

5

Būves augstums

0 m

Energoefektivitātes klase

-

Pazemes stāvu skaits

1

Transports

-

0

0

Skatījumu nav

Iesaistītie uzņēmumi

Projekta atspoguļojums plašsaziņas līdzekļos

Par IVN sākotnējā izvērtējuma veikšanu Vienības gatvē 24
2026-03-02  ·  rdpad.lv
Reklāma
Get full access with Citify Pro membership
From 30 Eur / month
Find business opportunities with full data access and functionality.

Atrašanās vieta   Iegult

Iecere Jauna būvniecība
Būvdarbu sākums

-

Būvdarbu beigas

2031

Stadijas
BIS lietas numurs