www.citify.eu
Izraksta laiks: 2026-04-29 15:19:54
Atjaunināts: 2025-06-21

Knypavos g. 10

Knypavos g. 10, Pilaitė, Vilnius

Rindu mājas

-

Projekta attīstītājs

Ervus

Sertifikāts

-

Privātmāju informācija

Pārdošanas informācija
Dati nav pieejami
Kopā

4

Privātmāju platība

79.8 m2

Cena par kvadrātmetru

- €

Teritorija

Teritorijas kopējā platība

0.0819 ha

Apbūves blīvums

28.08 %

Apbūves intensitāte

0.3898

Apbūves laukums

230,00 m2

Brīvā zaļā teritorija

26.98 %

Tehniskie parametri

Būvtilpums

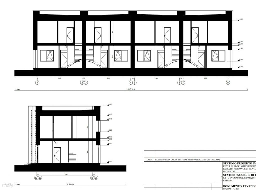
Kopējā telpu platība

319,20 m2

Virszemes stāvu platība

Pazemes stāvu platība

Lietderīgā platība

Komercplatības

0 m2

Virszemes stāvu skaits

2

Būves augstums

7.65 m

Energoefektivitātes klase

A++

Pazemes stāvu skaits

0

Transports

8

0

0

Pēdējā apskate

Projektu priekšlikumi
Statuss

Dokumenti
Šie ir publiskajai apspriešanai iesniegtie projekta materiāli

Skatīt dokumentu

Informācijas avots

Atvērt


Iesaistītie uzņēmumi

Reklāma
Metų laikai
Metų laikai
4 etapas jau čia!
Dar 187 butai pirkėjų pamėgtame projekte „Metų laikai“. Prasidėjo paskutinio, 4 etapo pardavimai – išsirinkite geriausią variantą jau dabar.

Atrašanās vieta   Iegult

Realizēts Jauna būvniecība
Būvdarbu sākums

2024 Q2

Būvdarbu beigas

2025 Q3

Stadijas
BIS lietas numurs