www.citify.eu
Izraksta laiks: 2026-04-30 22:18:39
Atjaunināts: 2024-02-14

Mildos g. 4

Mildos g. 4, Antakalnis, Vilnius

Viesnīca • Daudzdzīvokļu nams

-

Projekta attīstītājs

Realco

Sertifikāts

-

Dzīvokļu informācija

Pārdošanas informācija
Dati nav pieejami
Kopā

114

Dzīvokļu platība

19 - 58 m2

Cena par kvadrātmetru

- €

Teritorija

Teritorijas kopējā platība

0.4027 ha

Apbūves blīvums

40 %

Apbūves intensitāte

1.12

Apbūves laukums

1 610,00 m2

Brīvā zaļā teritorija

43 %

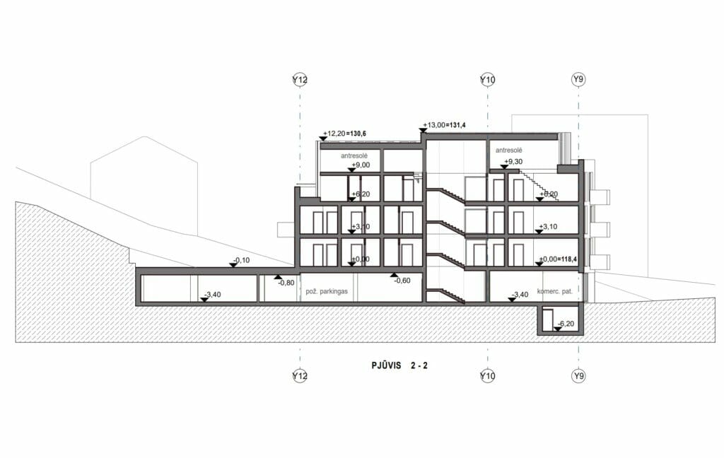
Tehniskie parametri

Būvtilpums

Kopējā telpu platība

5 849,60 m2

Virszemes stāvu platība

Pazemes stāvu platība

Lietderīgā platība

Komercplatības

300.6 m2

Virszemes stāvu skaits

3

Būves augstums

15.6 m

Energoefektivitātes klase

A++

Pazemes stāvu skaits

1

Transports

48

10

38

Pēdējā apskate

Projektu priekšlikumi
Statuss

2023-01-05 17:00
Dokumenti
Šie ir publiskajai apspriešanai iesniegtie projekta materiāli

Skatīt dokumentu

Informācijas avots

Atvērt


Iesaistītie uzņēmumi

Reklāma
Metų laikai
Metų laikai
4 etapas jau čia!
Dar 187 butai pirkėjų pamėgtame projekte „Metų laikai“. Prasidėjo paskutinio, 4 etapo pardavimai – išsirinkite geriausią variantą jau dabar.

Atrašanās vieta   Iegult

Iecere Jauna būvniecība
Būvdarbu sākums

-

Būvdarbu beigas

-

Stadijas
BIS lietas numurs