www.citify.eu
Izraksta laiks: 2026-05-05 22:56:03
Atjaunināts: 2025-05-09

Reisono namas

Vytauto pr. 43, Centras, Kaunas

Daudzdzīvokļu nams

-

Projekta attīstītājs

Labas GAS NT

Sertifikāts

-

Dzīvokļu informācija

Pārdošanas informācija
Pieejami: 1 (6%) Rezervēti: 0 (0%)Pārdoti: 16 (94%)
Kopā

17

Dzīvokļu platība

56 - 105 m2

Cena par kvadrātmetru

3 910 - 3 910 €

Pārdošanas informācija

+370 687 71111

dovile@011.lt

+370 657 83011

ruta@011.lt

Teritorija

Teritorijas kopējā platība

0.0956 ha

Apbūves blīvums

64 %

Apbūves intensitāte

1.97

Apbūves laukums

611,00 m2

Brīvā zaļā teritorija

30 %

Tehniskie parametri

Būvtilpums

Kopējā telpu platība

2 630,00 m2

Virszemes stāvu platība

Pazemes stāvu platība

Lietderīgā platība

Komercplatības

334.03 m2

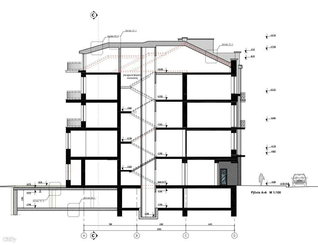
Virszemes stāvu skaits

5

Būves augstums

20 m

Energoefektivitātes klase

B

Pazemes stāvu skaits

1

Transports

27

0

9

Pēdējā apskate

Iesaistītie uzņēmumi

Reklāma
Užupio personos
Užupio personos
Gyvenkite Užupyje
Nuolaidos butams Užupyje iki 27 000 €! Pasinaudokite išskirtiniu pasiūlymu, nes progų apsigyventi pastatytame projekte liko mažiau nei 20.

Atrašanās vieta   Iegult

Realizēts Pārbūve
Būvdarbu sākums

2022 Q3

Būvdarbu beigas

2024 Q4

Stadijas
BIS lietas numurs