www.citify.eu
Izraksta laiks: 2026-05-07 21:57:23
Atjaunināts: 2025-12-08

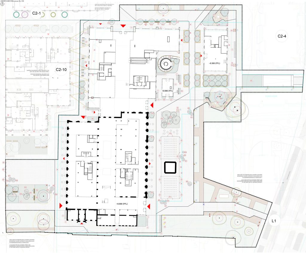
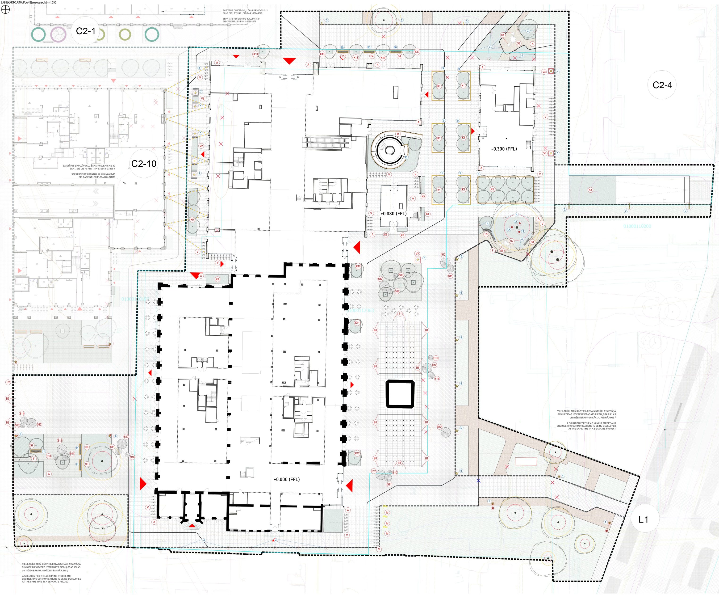
Riga Waterfront - Chimney Square

Andrejostas iela, Pētersala-Andrejsala, Rīga

Laukums

-

Projekta attīstītājs

Eagle Hills

Riga Port City

Finansējuma avots

-

Teritorija

Teritorijas kopējā platība

- ha

Apbūves blīvums

- %

Apbūves intensitāte

-

Apbūves laukums

0,00 m2

Brīvā zaļā teritorija

- %

Tehniskie parametri

Būvtilpums

Kopējā telpu platība

0,00 m2

Virszemes stāvu platība

Pazemes stāvu platība

Lietderīgā platība

Virszemes stāvu skaits

0

Būves augstums

0 m

Energoefektivitātes klase

-

Pazemes stāvu skaits

0

Transports

-

0

0

Skatījumu nav

Iesaistītie uzņēmumi

Reklāma
Get full access with Citify Pro membership
From 30 Eur / month
Find business opportunities with full data access and functionality.

Atrašanās vieta   Iegult

Iecere Jauna būvniecība
Būvdarbu sākums

-

Būvdarbu beigas

-

Stadijas
BIS lietas numurs