www.citify.eu
Izraksta laiks: 2026-04-29 15:19:13
Atjaunināts: 2025-06-26

Sauluvos g. 37

Sauluvos g. 37, Pilaitė, Vilnius

Daudzdzīvokļu nams

-

Projekta attīstītājs

Private person

Sertifikāts

-

Dzīvokļu informācija

Pārdošanas informācija
Dati nav pieejami
Kopā

4

Dzīvokļu platība

57 m2

Cena par kvadrātmetru

- €

Teritorija

Teritorijas kopējā platība

0.0619 ha

Apbūves blīvums

33.06 %

Apbūves intensitāte

0.3942

Apbūves laukums

198,43 m2

Brīvā zaļā teritorija

29.31 %

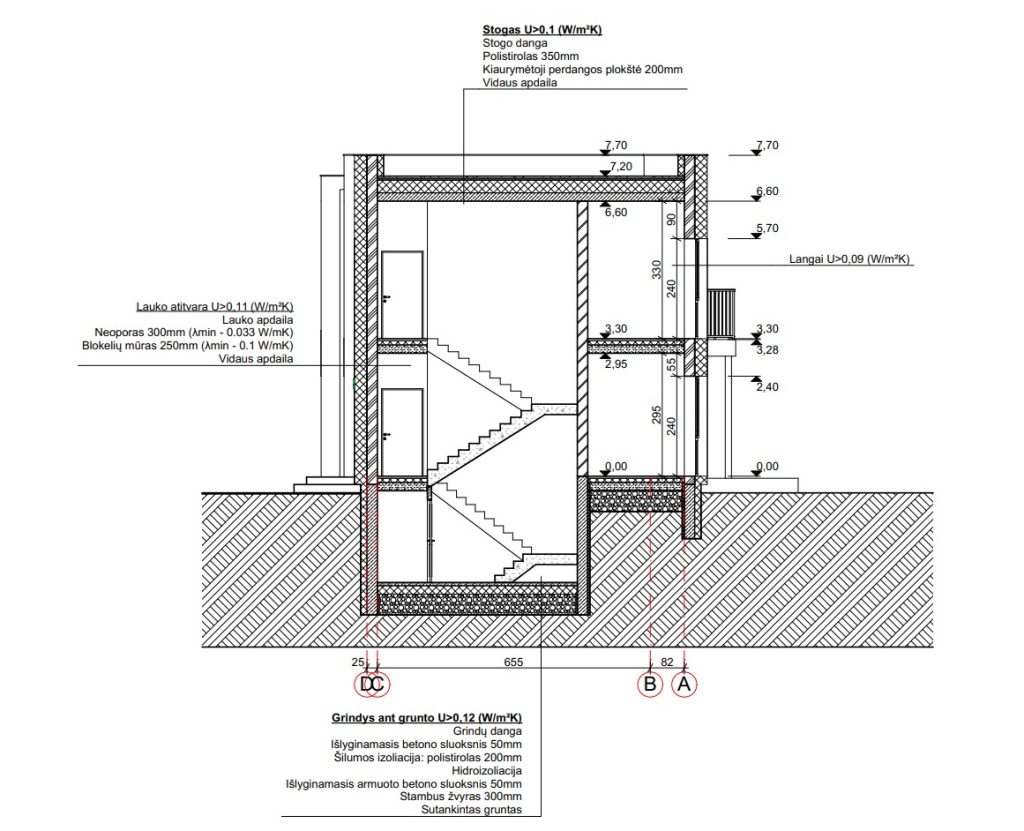
Tehniskie parametri

Būvtilpums

Kopējā telpu platība

254,90 m2

Virszemes stāvu platība

Pazemes stāvu platība

Lietderīgā platība

Komercplatības

0 m2

Virszemes stāvu skaits

2

Būves augstums

8.1 m

Energoefektivitātes klase

A++

Pazemes stāvu skaits

1

Transports

7

0

1

Pēdējā apskate

Projektu priekšlikumi
Statuss

Dokumenti
Šie ir publiskajai apspriešanai iesniegtie projekta materiāli

Skatīt dokumentu

Informācijas avots

Atvērt


Iesaistītie uzņēmumi

Reklāma
Metų laikai
Metų laikai
4 etapas jau čia!
Dar 187 butai pirkėjų pamėgtame projekte „Metų laikai“. Prasidėjo paskutinio, 4 etapo pardavimai – išsirinkite geriausią variantą jau dabar.

Atrašanās vieta   Iegult

Iecere Jauna būvniecība
Būvdarbu sākums

-

Būvdarbu beigas

-

Stadijas
BIS lietas numurs