www.citify.eu
Avalduse kuupäev: 2026-05-01 14:43:17
Uuendatud: 2026-01-26

reVINGIS Art Space

Geležinio Vilko g. 2, Vilkpėdė, Vilnius

Korterelamu

-

Arendaja

Galio Group

Sertifikaat

-

Korterite info

Müük
Meil pole neid andmeid
Kogus

123

Korterite suurused

- m2

Ruutmeetri hind

- €

Territoorium

Ala suurus

0.8017 ha

Ala tihedus

13.03 %

Ala intensiivsus

0.62

Maapealne ehitusalune pind

1 900,00 m2

Haljastus

25 %

Tehnilised parameetrid

Maht

Brutopind

8 054,26 m2

Maapealne brutopind

Maa-alune brutopind

Netopind

Äripinnad

- m2

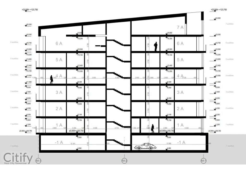
Maapealsed korrused

7

Kõrgus

23 m

Energiaklass

A+

Maa-alused korrused

1

Parkimine

102

0

29

Avalik väljapanek

Projektiettepanekud
Staatus

2020-01-21 17:00
Konstitucijos pr. 3-216, Vilnius
Dokumendid
Need on projektide ettepanekud, mis on esitatud avalikule väljapanekule.

Vaata dokumenti

Infoallikas

Ava


Seotud ettevõtted

Reklaam
Metų laikai
Metų laikai
4 etapas jau čia!
Dar 187 butai pirkėjų pamėgtame projekte „Metų laikai“. Prasidėjo paskutinio, 4 etapo pardavimai – išsirinkite geriausią variantą jau dabar.

Asukoht   Manusta

Planeeritud Uus ehitis
Algus

2025 Q2

Lõpp

-

Etapid
Projekti ID